¡Valoración Guardada!
Sólo lo verás tú
¡Comentario guardado!
Añade tu valoración y/o un comentario para este anuncio. Sólo lo verás tu
7.500 € Avísame si baja
ha bajado 100 €

Alquiler nave industrial con muelle de carga en Sant Feliu de Llobregat

  • 1.320 m2
  • 4 baños
  • 5,68 €/m2

NAVE INDUSTRIAL CON MUELLE DE CARGA EN SANT FELIU DE LLOBREGAT

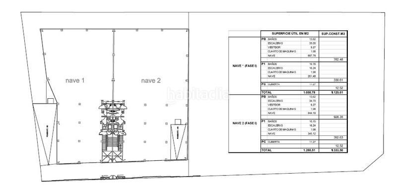
SUPERFICIE:
Planta Baja: 928m²
Oficinas: 392m²
Superficie Total: 1.320m²
Altura: 10m

CARACTERÍSTICAS:
Nave Tipo A
Patio delantero y trasero
Estructura hormigón
1 muelle de carga interior
Sistema antiincendios: BIES y detección
Perfecto estado con instalaciones
1 puerta peatona y 3 TIR
Oficina acondicionada y climatizada
Comedor
Vestuarios
4 aseos
Con suministros
Cubierta tipo sándwich
Muy buena accesibilidad

UBICACIÓN:
Sant Feliu de Llobregat está situado a 10kms. de a ciudad de Barcelona y cuenta con excelentes comunicaciones mediante A-2 y B-23.
Coche: Acceso desde la B-23.

última modificación

Distribución

  • Superficie 1320 m2

Características generales

  • Calefacción
  • Año construcción 2010
Anuncio: 3097004299305

Ubicación

El Pla

Navega por el mapa haciendo clic sobre él
¿Te avisamos cuando tengamos un anuncio como este? Crea tu alerta y nosotros te avisaremos por correo electrónico cuando hayan anuncios nuevos o que sean modificados
 

Contactar Activa Properties

Referencia del anuncio habitaclia/4436:

Verás el teléfono después de enviar tu contacto al anunciante para que te pueda atender.
Verás el teléfono después de contactar
Enviando...