Favorito y comentario
Sólo lo verás tú
42.800 €
Avísame si baja
Alquiler nave industrial en calle zuazobidea 2 en Vitoria - Gasteiz
Características principales
- 8.552 m2
- 5,00 €/m2
Información detallada
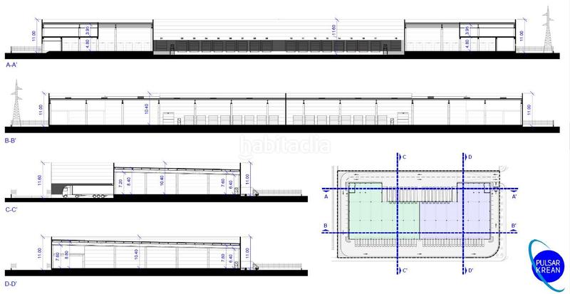
Nave logística en construcción de m2 especifica para Cross Docking
formadas por dos módulos independientes de 4.276 m2 cada uno.
Características
- Estructura: Hormigón
- Altura libre: 9,00
- Cubierta: Plana sandwich
- Muelles: 16
- PCI Completo
- Rociadores
- Nivel de riesgo: Medio 5
- Suelo nave: Hormigón pulido
- LEED - Certificado: Plata
- Plazas parking: 20
- Iluminación: Ilum. oficinas Led
- Suelo técnico
- Falso techo
- Climatización: Climatización.
última modificación
Distribución
- Superficie 8552 m2
Galería
Ubicación
Zona Rural Suroeste Calle Zuazobidea 2
Navega por el mapa haciendo clic sobre él

habitaclia.com no se responsabiliza de los errores que la información mostrada en este mapa pueda contener. El usuario será el responsable del uso que dé a dicha información.
¿Te avisamos cuando tengamos un anuncio como este?
Crea tu alerta y nosotros te avisaremos por correo electrónico cuando hayan anuncios nuevos o que sean modificados