¡Valoración Guardada!
Sólo lo verás tú
¡Comentario guardado!
Añade tu valoración y/o un comentario para este anuncio. Sólo lo verás tu
1.000 € Avísame si baja
ha bajado 100 €

Alquiler oficina en alquiler en autonomia en Bilbao

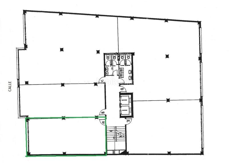
  • 66 m2
  • 15,15 €/m2

Oficina en alquiler en Autonomia

Quorum Bilbao presenta una oficina en alquiler en Autonomía, junto a Iparraguirre. Con calefacción y aire acondicionado incluidos.

Se trata de una oficina de 66 metros cuadrados, con grandes ventanales a patio de manzana, perfectamente preparada para entrar a trabajar.

Con suelos cerámicos, instalación eléctrica, de red y luminaria completa. Preparado para varios puestos de trabajo.

Gastos de comunidad INCLUIDOS, que incluyen calefacción central, aire acondicionado por bomba de calor, dos aseos comunitarios, vigilancia y dos ascensores.

Posibilidad de adquirir parcelas de garaje con acceso directo desde 130€

A 3 minutos andando de la plaza Indautxu, donde encontramos estación de metro, y a otros 3 de la plaza de la Casilla, con servicio de tranvía.

última modificación

Distribución

  • Superficie 66 m2

Características generales

  • Calefacción
  • Aire acondicionado
  • Certificado energético :
    Consumo:
    G
    999 kW h m2 / año
    Emisiones:
    G
    999 kg CO2 m2 / año

Equipamiento comunitario

  • Ascensor
Anuncio: 29469000002260

Ubicación

Alhóndiga Calle Autonomía

Navega por el mapa haciendo clic sobre él
¿Te avisamos cuando tengamos un anuncio como este? Crea tu alerta y nosotros te avisaremos por correo electrónico cuando hayan anuncios nuevos o que sean modificados
 

Contactar INMOBILIARIA QUORUM BILBAO .

Referencia del anuncio habitaclia/16584:

Verás el teléfono después de enviar tu contacto al anunciante para que te pueda atender.
Verás el teléfono después de contactar
Enviando...