¡Valoración Guardada!
Sólo lo verás tú
¡Comentario guardado!
Añade tu valoración y/o un comentario para este anuncio. Sólo lo verás tu

Alquiler oficina clínica en bonanova en Tres Torres Barcelona

  • 4.034 m2
  • 9,88 €/m2

Clínica en Bonanova

Situado en los bajos de la antigua sede de la Clínica Dexeus, actualmente SAR Quavitae, la zona es conocida por albergar consultorios médicos y quirófanos de todo tipo. Una de sus mejores características es su excelente ubicación.

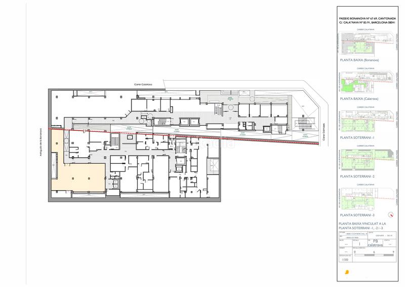
El equipamiento sanitario, con una superficie total de 4.034 m2 construidos, está dividido en 4 plantas, conectadas por 2 ascensores, con dos entradas principales: una por Bonanova 69 y otra en el chaflán de Calatrava con Dalmases.

Planta baja / 441,73 m2
El anteproyecto cuenta con planta con luz natural para:
Recepción, Oficinas, Dirección y atención al cliente, Consultorios, despachos y zonas de reuniones, Zona Farmacia, Equipamientos para empleados (lavabos, vestuarios, zonas comunes), Lavabos, Locales comerciales.

Planta -1 / 982 m2
Consultorios, despachos y zonas de reuniones, Vestíbulo, Zonas de espera, Lavabos, Equipamientos para empleados (lavabos, vestuarios, zonas comunes), Almacén, Zona de mantenimiento.

Planta -2 / 1.905 m2
Entrada Calatrava con Dalmases, Zona con luz natural para oficinas, Dirección y atención al cliente, Consultorios, despachos y zonas de reuniones, Zonas de espera, 7 quirófanos, Zonas de recuperación (8 pacientes), Acceso ambulancia, Lavabos, Equipamientos para empleados (lavabos, vestuarios, zonas comunes), Zona de instalaciones.

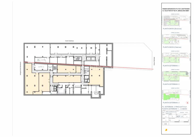
Planta -3 / 705,68 m2
Consultorios, despachos y zonas de reuniones, Vestuarios, Almacén.

Las instalaciones, tienen la capacidad de cubrir las distintas especialidades de medicina, con espacios adaptados para consultorios médicos y/o quirófanos de día: traumatología, dermatología, oftalmología, etc.

El estado actual del local permitirá al arrendatario adecuarlo a las necesidades del uso sanitario idóneo para su actividad.


Catala:

Situat als baixos de l'antiga seu de la Clínica Dexeus, actualment SAR Quavitae, la zona és coneguda per albergar consultoris mèdics i quiròfans de tota mena. Una de les seves millors característiques és la seva ubicació.

L'equipament sanitari, amb una superfície total de 4.034 m2 construïts, està dividit en 4 plantes, connectades per 2 ascensors, amb dues entrades principals: una per Bonanova 69 i una altra al xamfrà de Calatrava amb Dalmases.

Planta baixa / 441,73 m2
L'avantprojecte té planta amb llum natural per a:
Recepció, Oficines, Direcció i atenció al client, Consultoris, despatxos i zones de reunions, Zona Farmàcia, Equipaments per a empleats (lavabos, vestuaris, zones comunes), Lavabos, Locals comercials.

Planta -1/982 m2
Consultoris, despatxos i zones de reunions, Vestíbul, Zones d´espera, Lavabos, Equipaments per a empleats (lavabos, vestuaris, zones comunes), Magatzem, Zona de manteniment.

Planta -2/1.905 m2
Entrada Calatrava amb Dalmases, Zona amb llum natural per a oficines, Direcció i atenció al client, Consultoris, despatxos i zones de reunions, Zones d'espera, 7 quiròfans, Zones de recuperació (8 pacients), Accés ambulància, Lavabos, Equipaments per a empleats (lavabos, vestuaris, zones comunes).

Planta -3/705,68 m2
Consultoris, despatxos i zones de reunions, Vestuaris, Magatzem.

Les instal·lacions tenen la capacitat de cobrir les diferents especialitats de medicina, amb espais adaptats per a consultoris mèdics i/o quiròfans de dia: traumatologia, dermatologia, oftalmologia, etc.

L'estat actual del local permetrà a l'arrendatari adequar-lo a les necessitats de l'ús sanitari idoni per a la vostra activitat.



English:

Located on the ground floor of the former headquarters of the Dexeus Clinic, currently SAR Quavitae, the area is known for housing medical offices and operating theatres of all kinds. One of its best features is its excellent location.

The healthcare facility, with a total surface area of ??4,034 m2 built, is divided into 4 floors, connected by 2 lifts, with two main entrances: one on Bonanova 69 and another on the corner of Calatrava and Dalmases.

Ground floor / 441.73 m2
The preliminary project has a floor with natural light for:
Reception, Offices, Management and customer service, Consulting rooms, offices and meeting areas, Pharmacy area, Employee facilities (toilets, changing rooms, common areas), Toilets, Commercial premises.

Floor -1 / 982 m2
Consulting rooms, offices and meeting areas, Lobby, Waiting areas, Toilets, Employee facilities (toilets, changing rooms, common areas), Warehouse, Maintenance area.

Floor -2 / 1,905 m2
Calatrava entrance with Dalmases, Area with natural light for offices, Management and customer service, Consulting rooms, offices and meeting areas, Waiting areas, 7 operating rooms, Recovery areas (8 patients), Ambulance access, Toilets, Employee facilities (toilets, changing rooms, common areas), Facilities area.

Floor -3 / 705.68 m2
Consulting rooms, offices and meeting areas, Changing rooms, Warehouse.

The facilities have the capacity to cover the different medical specialties, with spaces adapted for medical offices and/or day operating rooms: traumatology, dermatology, ophthalmology, etc.

The current state

última modificación

Distribución

  • Superficie 4034 m2

Características generales

  • Certificado energético :
    Consumo:
    G
    999 kW h m2 / año
    Emisiones:
    G
    999 kg CO2 m2 / año
Anuncio: 1772002714325

Ubicación

Tres Torres

Navega por el mapa haciendo clic sobre él
¿Te avisamos cuando tengamos un anuncio como este? Crea tu alerta y nosotros te avisaremos por correo electrónico cuando hayan anuncios nuevos o que sean modificados
 

Contactar ENGEL & VÖLKERS

Referencia del anuncio habitaclia/BCN-OS-014905:

Verás el teléfono después de enviar tu contacto al anunciante para que te pueda atender.
Verás el teléfono después de contactar
Enviando...