Favorito y comentario
Alquiler oficina en alquiler en calle valencia con rambla catalunya en Barcelona
Características principales
- 182 m2
- 19,78 €/m2
Información detallada
Oficina en alquiler en calle Valencia con Rambla Catalunya
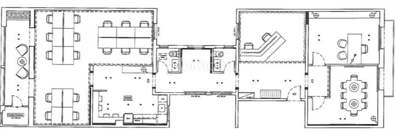
OFICINA REHABILITADA A ESTRENAR EN EL CORAZÓN DEL EIXAMPLE
Con una superficie total construida de 182m2 (167m2 de oficina + 15m2 de elementos comunes), está situada en la planta principal de un edificio finca regia señorial de uso mixto. El edificio se distribuye en 5 plantas sobre rasante, dispone de un elegante vestíbulo, servicio de conserje en el horario de la mañana y 1 ascensor.
La oficina en su interior ha sido rehabilitada integralmente respetando la historia del lugar, dejando a la vista materiales originales, que aportan carácter al espacio. La acertada propuesta de rehabilitación logró introducir funcionalidad y diseño actual muy cuidado.
Se distribuye en una amplia zona de espera y recepción, 2 salas/despachos con salida a balcón y vistas a calle Valencia, 2 aseos, un office equipado, una amplia sala diáfana y una galería interior con vistas a patio de manzana, punto de encuentro para el descanso y reuniones informales.
Esta equipada con suelos de parquet, iluminación decorativa, sistema de climatización por conductos (frío/calor), ventanas con doble cristal, preinstalación eléctrica, lo que facilita posibles adecuaciones según las necesidades del futuro inquilino y fibra óptica.
Excelente ubicación, zona conocida por su gran valor arquitectónico y cultural, eje de la actividad comercial y financiera.
Su excelente comunicación mediante transporte público garantiza fácil acceso desde cualquier punto de la ciudad.
Gastos de comunidad e ibi no incluidos en la renta.
* En cumplimiento de la Ley 12/2023 y la Llei 18/2007 informamos que:
Ref. AOB2510026
última modificación
Distribución
- Superficie 182 m2
Características generales
- Calefacción
- Sin plaza parking
- Aire acondicionado
- Año construcción 1884
Equipamiento comunitario
- Ascensor
Galería
Ubicación
Dreta de l´Eixample Carrer de València