¡Valoración Guardada!
Sólo lo verás tú
¡Comentario guardado!
Añade tu valoración y/o un comentario para este anuncio. Sólo lo verás tu

Alquiler oficina edificio de oficinas independiente en Barcelona

  • 3.730 m2
  • 23,00 €/m2

Edificio de oficinas independiente

Referencia 15d21

Edificio de oficinas corporativo en proceso de reforma, situado al lado de Vía Augusta y de la Ronda General Mitre.Ideal para empresas que buscan una sede/oficina corporativa en un edificio sin vecinos. Buenas comunicaciones con el centro de Barcelona.

Disponible en 2Q 2026

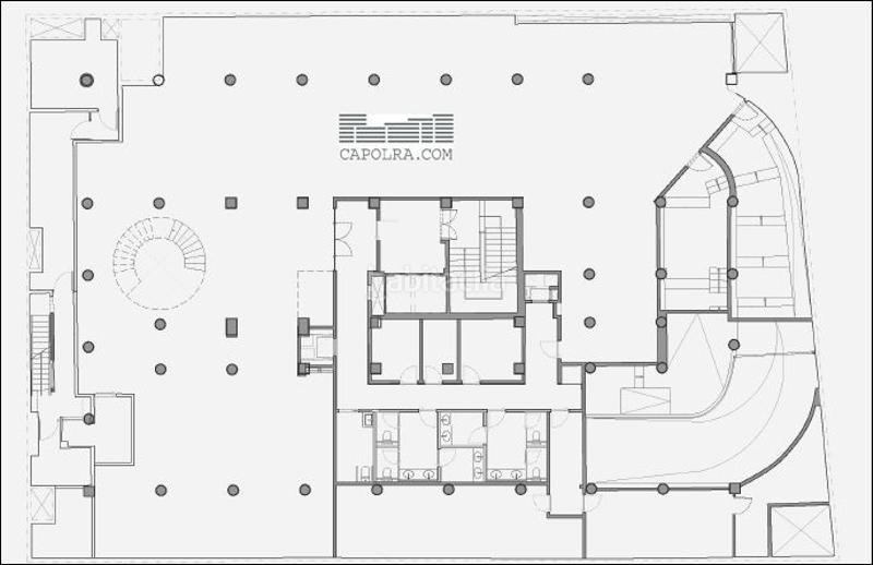
Distribuido en:
- Plta.sot.1 495,81 m²
- Plta Baja 412,91 m²
- 1ª planta 608,84 m²
- 2ª planta 608,84 m²
- 3ª planta 608,84 m²
- 4ª planta 608,84 m²
- Plta ático 386,59 m² + 140 m² de terraza
- Total 3.730,66 m²

CARACTERÍSTICAS:
¦ Fachada a tres vientos
¦ Terraza de 140 m² en planta ático
¦ Distribuido en planta baja más 4 plantas + ático
¦ Altura libre 2,75 mts
¦ Ratio de ocupación 1:8
¦ Techo con instalaciones vistas
¦ Suelo técnico INTERCELL
¦ Conductos de clima con fan-coil
¦ Núcleo de aseos por planta
¦ Dos sótanos destinados a garaje con 26 plazas
¦ Certificado energético nivel A
¦ Iluminación LED con detectores de luz natural
¦ Sensores de calidad del aire para la regulación de la ventilación interior
¦ Placas fotovoltaicas en cubierta
¦ Uso sanitario y educacional compatible
¦ 26 plazas de garaje para vehículos
¦ Parking de bicicletas
¦ Dos ascensores
¦ Edificio adaptado a personas con movilidad reducida
¦ Sala de gestión de residuos centralizada en planta sótano.
¦ Alquiler 85.790 €/mes (23 €/m²/mes)
¦ Gastos de comunidad 9.548,80 €/mes (2,56 €/m²/mes)

Comunicaciones:
¦ BUS: 68, 70, H6, V7, V9
¦ FGC: Les Tres Torres / Sarrià

Para más inmuebles como este, contáctenos:
- .
-..
. [IW]

última modificación

Distribución

  • Superficie 3730 m2

Características generales

  • Calefacción
  • Aire acondicionado
  • Año construcción 1969
  • Certificado energético :
    Consumo:
    G
    999 kW h m2 / año
    Emisiones:
    G
    999 kg CO2 m2 / año
Anuncio: 10944000009933

Ubicación

Tres Torres

Navega por el mapa haciendo clic sobre él
¿Te avisamos cuando tengamos un anuncio como este? Crea tu alerta y nosotros te avisaremos por correo electrónico cuando hayan anuncios nuevos o que sean modificados
 

Contactar CAPOLRA

Referencia del anuncio habitaclia/15d21:

Verás el teléfono después de enviar tu contacto al anunciante para que te pueda atender.
Verás el teléfono después de contactar
Enviando...