¡Valoración Guardada!
Sólo lo verás tú
¡Comentario guardado!
Añade tu valoración y/o un comentario para este anuncio. Sólo lo verás tu

Alquiler oficina en alquiler en avenida madrid con avenida carlos iii en Barcelona

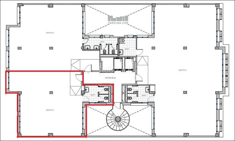
  • 106 m2
  • 12,97 €/m2

Oficina en alquiler en Avenida Madrid con Avenida Carlos III

Referencia 12d0751

Oficina en edificio de oficinas totalmente rehabilitado con una alta imagen en la zona de les Corts, dispone de buenas comunicaciones, todo tipo de servicios y gran movimiento comercial como restauración, supermercados, además de atención sanitaria , escuelas, zonas verdes, situada a escasa distancia del Camp Nou.

LA OFICINA:
¦ Diáfana con una división.
¦ Abundante luz natural.
¦ Falso techo.
¦ Luminarias empotradas.
¦ Suelo técnico.
¦ Canalización perimetral.
¦ Sistema de climatización independiente por plantas.
¦ Ventanas practicables.
¦ Aseos privativos.
¦ Detectores de incendios.
¦ Gastos de comunidad 278,95 €/mes (2,63 €/m²/mes).
¦ IBI, 62,42 €/mes (0,59 €/m²/mes).
¦ Alquiler 1.375 €/mes (12,97 €/m²/mes).

EL EDIFICIO:
¦ Fachada semi acristalada.
¦ Trasteros en la planta ático.
¦ Dos ascensores
¦ Servicio de conserjería en horario comercial.
¦ Fibra óptica.
¦ Garaje en el edificio.

COMUNICACIONES:
¦ BUS: 54, 70, 175, D20, V3
¦ Metro: L5 Badal / L3 plaça Centre (a 10 minutos a pie)
¦ Carreteras: N-340

Para visitas u otras oficinas similares:
-t.
-
[IW]

última modificación

Distribución

  • Superficie 106 m2

Características generales

  • Calefacción
  • Aire acondicionado
  • Año construcción 1967
  • Certificado energético :
    Consumo:
    G
    999 kW h m2 / año
    Emisiones:
    G
    999 kg CO2 m2 / año

Equipamiento comunitario

  • Ascensor
Anuncio: 10944000010021

Ubicación

Sant Ramon - Maternitat avenida madrid

Navega por el mapa haciendo clic sobre él
¿Te avisamos cuando tengamos un anuncio como este? Crea tu alerta y nosotros te avisaremos por correo electrónico cuando hayan anuncios nuevos o que sean modificados
 

Contactar CAPOLRA

Referencia del anuncio habitaclia/12d0751:

Verás el teléfono después de enviar tu contacto al anunciante para que te pueda atender.
Verás el teléfono después de contactar
Enviando...