¡Valoración Guardada!
Sólo lo verás tú
¡Comentario guardado!
Añade tu valoración y/o un comentario para este anuncio. Sólo lo verás tu
928.000 € Avísame si baja

Apartamento en venta apartamento premium en el Centro en Andorra la Vella

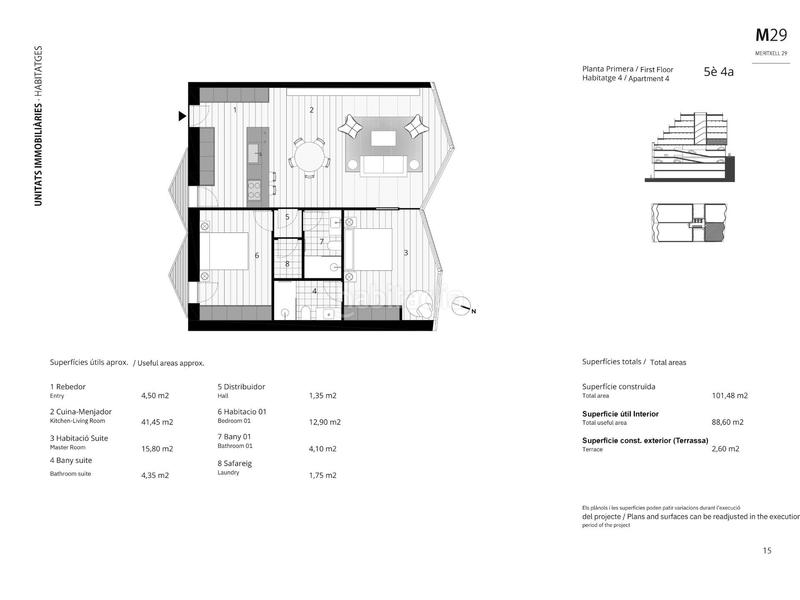
  • 101 m2
  • 2 hab.
  • 2 baños
  • 9.188 €/m2

En venta Apartamento premium en el centro de Andorra la Vella

Ubicado en pleno corazón de Andorra la Vella, este moderno apartamento combina confort, elegancia y funcionalidad. Sus acabados de alta calidad y su excelente ubicación lo convierten en una propiedad excepcional.

Al entrar, descubrirá un amplio y luminoso salón, acompañado de una cocina americana totalmente equipada, ideal para disfrutar de momentos en compañía.
El apartamento cuenta con dos habitaciones, una de ellas una suite principal con baño privado, ofreciendo un espacio íntimo y refinado.
También dispone de un segundo baño, para mayor comodidad de todos los ocupantes.
Además, cuenta con una lavandería, perfecta para gestionar la ropa y almacenar todos sus equipos de limpieza.

Por último, para mayor comodidad, existe la posibilidad de adquirir una plaza de aparcamiento y un trastero como complemento.

No pierda esta oportunidad única de adquirir un apartamento de lujo en pleno centro, cerca de todas las comodidades.

última modificación

Distribución

  • 2 habitaciones
  • Superficie 101 m2
  • 2 Baños

Características generales

  • Calefacción
  • Plaza parking
  • Certificado energético :
    Consumo:
    G
    999 kW h m2 / año
    Emisiones:
    G
    999 kg CO2 m2 / año

Equipamiento comunitario

  • Ascensor
Anuncio: 46780000000082

Ubicación

Centro

Navega por el mapa haciendo clic sobre él
928.000 € Precio del anuncio
6.900 €/m2€/m2 población
9.188 €/m2€/m2 del anuncio
Ver evolución €/m2 en Andorra la Vella
¿Te avisamos cuando tengamos un anuncio como este? Crea tu alerta y nosotros te avisaremos por correo electrónico cuando hayan anuncios nuevos o que sean modificados
 

Contactar Immobiliària Duplex

Referencia del anuncio habitaclia/206:

Verás el teléfono después de enviar tu contacto al anunciante para que te pueda atender.
Verás el teléfono después de contactar
Enviando...