Favorito y comentario
Apartamento en Los Pacos Fuengirola
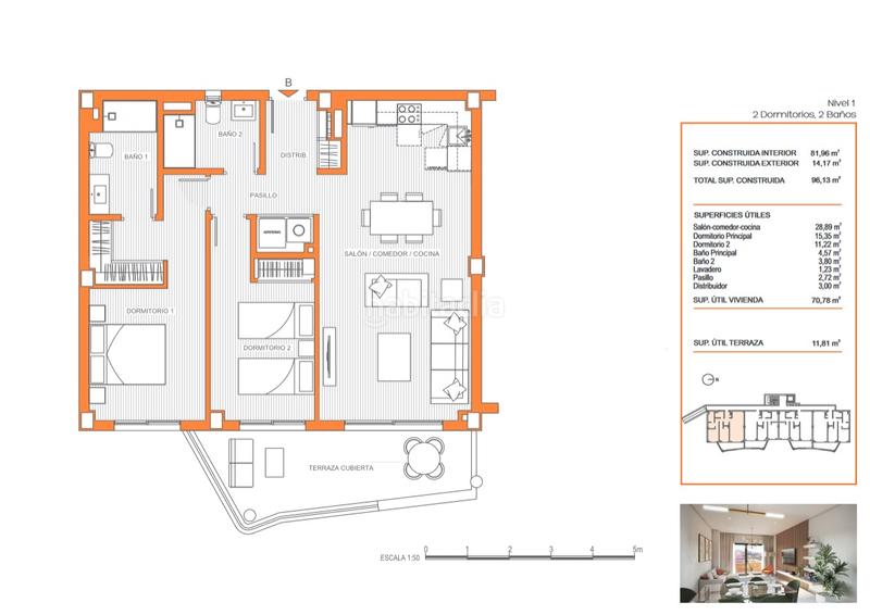
Características principales
- 96 m2
- 2 hab.
- 2 baños
- 3.104 €/m2
Información detallada
Excelentes viviendas de obra nueva en la zona de Los Pacos, Fuengirola! A sólo 2km de la playa y 5 minutos andando del centro de Los Pacos, estos apartamentos contarán con 2 dormitorios, 2 baños, cocina amueblada y equipada con electrodomésticos, terraza, aire acondicionado, sistema de aerotermia para producción de agua caliente y parking. Además, podrán disfrutar de las zonas comunes de la primera fase, las cuales cuentan con piscina, gimnasio y sauna.
Muy buena ubicación en plena Costa del Sol, donde disfrutar del clima cálido mediterráneo, de la playa y el sol. A sólo 20 minutos del aeropuerto internacional de Málaga.
Ideal como vivienda de vacaciones e inversión. En construcción, fecha estimada de entrega a mediados de 2026.
última modificación
Distribución
- 2 habitaciones
- Superficie 96 m2
- 2 Baños
Características generales
- Plaza parking
- Aire acondicionado
Galería
Ubicación
Los Pacos
