Favorito y comentario
Ático en venta en las rozas de madrid en Yucatán-La Cornisa Rozas de Madrid (Las)
Características principales
- 272 m2
- 4 hab.
- 3 baños
- 4.412 €/m2
Información detallada
Ático en venta en Las rozas de madrid
ESTUDIO MAJADAHONDA PLANTIO PRESENTA EN EXCLUSIVA IMPRESIONANTE ÁTICO DÚPLEX:
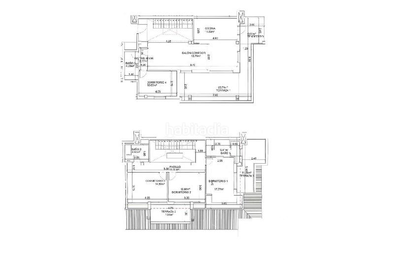
Este impresionante ático dúplex, construido en 2021, destaca por su diseño moderno, funcionalidad y las mejores calidades en cada detalle. Con una superficie total de 272 metros cuadrados distribuidos en dos plantas, cada rincón de esta vivienda ha sido pensado para ofrecer comodidad y estilo.
En la primera planta, encontramos un majestuoso salón de amplias dimensiones que se conecta de forma fluida con uno de los espacios más espectaculares de la casa: la cocina. Este espacio está diseñado con gran gusto y funcionalidad, con una isla a medida que se convierte en el corazón de la estancia. Además, se destaca por su gran capacidad de almacenamiento, ideal para el día a día. La cocina cuenta con electrodomésticos de alta gama, como una nevera doble, microondas y horno de gran tamaño, que superan las dimensiones convencionales. La zona de comedor se integra a la perfección con la cocina, creando un ambiente acogedor y abierto.
En esta planta también encontramos una zona de tendedero y lavandería, que alberga el sistema de aerotermia, garantizando un excelente rendimiento energético. La terraza de la primera planta es uno de los puntos más destacados, no solo por su tamaño, sino por las impresionantes vistas que ofrece de la zona. Además, hay un dormitorio doble con armarios empotrados y un baño con plato de ducha.
Al subir a la segunda planta, nos encontramos con tres dormitorios, dos de ellos dobles con armarios empotrados y una gran terraza que conecta las dos habitaciones a través de un acceso exterior. Esta planta cuenta con un baño adicional con bañera, ideal para el uso de los dormitorios secundarios. El dormitorio principal es un refugio de confort, con un amplio vestidor, un baño en suite con ventana exterior y, por supuesto, una terraza privada que invita a la relajación y tranquilidad.
La vivienda ha sido construida con las mejores calidades, destacando las ventanas de PVC, la aerotermia, la tarima de alta calidad y las paredes lisas que aportan una sensación de amplitud y luminosidad. Además, incluye tres plazas de garaje y un trastero, lo que proporciona una gran comodidad en cuanto a almacenamiento y aparcamiento.
Ubicado en una urbanización exclusiva, esta vivienda cuenta con excelentes servicios como piscina, gimnasio, baño comunitario y zonas ajardinadas, además de tener pocos vecinos, lo que asegura privacidad y tranquilidad. La propiedad está perfectamente comunicada tanto por transporte público, con una parada a tan solo 5 minutos caminando, como por carretera, gracias a su fácil acceso desde la vivienda.
Un hogar diseñado para quienes buscan lo mejor en calidad de vida, confort y exclusividad.
A pocos minutos del centro de Majadahonda y Las Rozas, y rodeada de zonas verdes, parques infantiles, comercios, bares, restaurantes, colegios, paradas de autobús. Con muy buena comunicación con la M-50 y la A-6.
POSIBILIDAD DE FINANCIACION HASTA EL 100% CON NUESTRO DEPARTAMENTO FINANCIERO KIRON!
última modificación
Distribución
- 4 habitaciones
- Superficie 272 m2
- 3 Baños
- Trastero
Características generales
- Calefacción
- Plaza parking
- Año construcción 2021
Equipamiento comunitario
- Ascensor
- Piscina comunitaria
Galería
Ubicación
Yucatán-La Cornisa