Visita virtual
¡Valoración Guardada!
Sólo lo verás tú
¡Comentario guardado!
Añade tu valoración y/o un comentario para este anuncio. Sólo lo verás tu

Casa vivienda en venta . en Cocentaina

  • 117 m2
  • 4 hab.
  • 2 baños
  • 615 €/m2

VIVIENDA EN VENTA EN COCENTAINA.

Os presentamos esta vivienda en venta en el centro de Cocentaina, cuenta con un espaciosa terraza y unas vistas que no dejan a nadie indiferente. La vivienda se encuentra en buen estado de conservación.

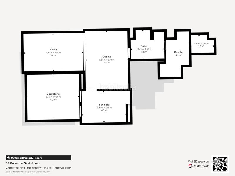
LA VIVIENDA SE DIVIDE EN 3 PLANTAS.

Y CONSTA DE 1 SALON, 1 SALA DE ESTAR, COCINA, RECIBIDOR, COMEDOR, 2 BAÑOS, 4 HABITACIONES, TRASTERO, PATIO INTERIOR Y TERRAZA.

PLANTA BAJA:
- Entrada y breve recibidor que nos da paso a un comedor interior.
- Cocina Equipada y funcional.
- Baño en planta baja equipado con bañera.
- Sala de estar junto al comedor.

1º PLANTA:
- 1 de las 4 habitaciones.
- Salón principal de la vivienda muy espacioso y luminoso.
- Baño Equipado y funcional.
- Trastero
- Salida al patio interior que a su vez también se comunica con el trastero por otra puerta secundaria.

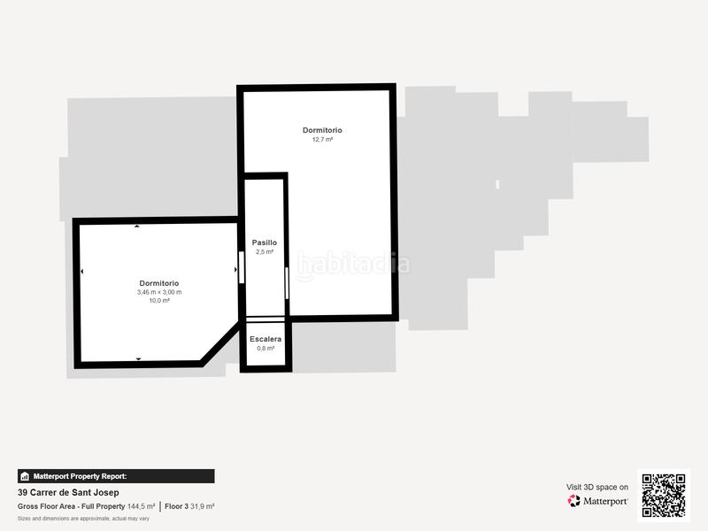
2º Planta:
- 2 habitaciones de tamaño estándar.
- 1 habitación de gran tamaño la cual nos da la salida a la terraza de la vivienda.
- Terraza y zona exterior.

No pierdas la oportunidad de visitar la que puede ser tu futura vivienda!

________________________________________________________________________________

En la inmobiliaria Núcleo Alcoy te acompañamos de principio a fin en tu búsqueda.

Nos situamos en la Avda. Alameda Camilo Sesto 64. Alcoy.

Ven a conocernos en nuestro amplio horario comercial: de lunes a viernes de 9:30h a 14:00h y de 16:30h a 20:00h y sábados de 10:00h a 14:00h.

_________________________

Núcleo gestiones inmobiliarias; Somos 25 oficinas y mas de 80 asesores inmobiliarios a su disposición.

Oficinas en Alicante, Sant Joan d´Alacant y Torrevieja. Además de oficinas en Valencia, Sevilla y Zaragoza.

Realizamos valoraciones gratuitas.

Les garantizamos el mejor servicio.

* cámara de realidad virtual
* promoción premium en los mejores portales inmobiliarios
* revista inmobiliaria bimensual con tirada de 15.000 copias.
* departamento de intermediación financiera. Hasta el 100% de la hipoteca.
* base de datos de compradores compartida por las 5 oficinas y filtrada según afinidad.
* profesionalidad, compromiso y experiencia.

última modificación

Distribución

  • 4 habitaciones
  • Superficie 117 m2
  • Terraza 25 m2
  • Terreno 40 m2
  • 2 Baños
  • Cocina tipo office: No
  • Trastero

Características generales

  • Calefacción
  • Sin plaza parking
  • Amueblado
  • Aire acondicionado
  • Año construcción 1900
  • Certificado energético :
    Consumo:
    E
    303 kW h m2 / año
    Emisiones:
    E
    300 kg CO2 m2 / año
Anuncio: 52595000000083

Ubicación

Navega por el mapa haciendo clic sobre él
72.000 € Precio del anuncio
1.029 €/m2€/m2 población
615 €/m2€/m2 del anuncio
40% más barato que la media*
¿Cuanto te gustaría pagar?
Ver evolución €/m2 en Cocentaina
¿Te avisamos cuando tengamos un anuncio como este? Crea tu alerta y nosotros te avisaremos por correo electrónico cuando hayan anuncios nuevos o que sean modificados
 

Contactar Núcleo Alcoy

Referencia del anuncio habitaclia/San Vicent Martir - Alejandro:

Verás el teléfono después de enviar tu contacto al anunciante para que te pueda atender.
Verás el teléfono después de contactar
Enviando...