¡Valoración Guardada!
Sólo lo verás tú
¡Comentario guardado!
Añade tu valoración y/o un comentario para este anuncio. Sólo lo verás tu
620.000 € Avísame si baja
ha bajado 10.000 €

Casa magnífica propiedad en pruvia en Llanera

  • 605 m2
  • 8 hab.
  • 6 baños
  • 1.025 €/m2

Magnífica propiedad en Pruvia

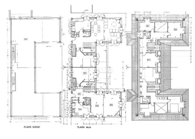
Engel & Völkers presenta esta propiedad única cuya principal característica es que se trata de dos casas idénticas pareadas unidas por un enorme sótano muy aprovechado y distribuido en varias zonas: caldera, lavandería, parrilla y garaje con capacidad para varios coches. Ubicada en una preciosa parcela con imponentes árboles y gran privacidad, tiene un estilo rústico, con tejado de pizarra y contraventanas de madera que recuerda a las casa señoriales de la campiña francesa.

Cada una de las casas está distribuida en planta baja, donde la estancia principal es el bonito salón a doble altura, con chimenea y grandes ventanales con acceso directo a la parcela que muestran una vista panorámica del increíble jardín, inundando los interiores de luz natural. Está directamente comunicado con la cocina, amplia y muy luminosa, también con salida directa a la parcela. En la misma planta encontramos un baño de cortesía y una habitación completa con baño en suite y armario empotrado. En la primera planta encontramos otros tres dormitorios, con armarios empotrados y un baño completo.

Todas las estancias principales tienen salida directa al porche que rodea la casa, con orientación Sur y preciosas vistas, perfectamente diseñado para disfrutar del contacto con la naturaleza.

En definitiva se trata de una propiedad con múltiples opciones ya que se podría tanto reformar fácilmente para convertir en una única propiedad como mantener así, en dos viviendas pareadas, tanto para viviendas habituales como para explotación turística. Además la parcela también se podría segregar destinando dos parcelas de 1750 m2 cada una para otras futuras edificaciones.
Ubicada en Pruvia, zona del concejo de Llanera con mayor crecimiento de población en los últimos años es el enclave perfecto para disfrutar de la vida en un entorno rural pero con servicios, todo cerca y las grandes ciudades de Asturias a menos de media hora. Situada de forma estratégica en la zona central del Principado de Asturias y rodeada por las principales ciudades de la región gracias a la fácil accesibilidad desde la AS-II y la autovía A-66. Se encuentra aproximadamente a unos 17 Km (17 min.) de Gijón y a unos 13 Km (13 min.) de Oviedo, ciudades con las que se encuentra conectado con transporte público.
Además de su cercanía con la ciudad, se encuentra a tan sólo 2 minutos de la urbanización Soto de Llanera, donde cuenta con varios servicios como restaurantes, alimentación, etc. y aproximadamente a unos 9 Km (12 min.) del mayor centro comercial de Asturias, Parque Principado donde poder disfrutar de todos los servicios y actividades de ocio, cultura y tiempo libre que ofrece.

También cabe destacar la cercanía a varios colegios en la zona y al Real Club de Golf de La Barganiza a escasos 4 minutos.

última modificación

Distribución

  • 8 habitaciones
  • Superficie 605 m2
  • Terreno 7000 m2
  • 6 Baños
  • Lavadero

Características generales

  • Calefacción
  • Plaza parking
  • Sin aire acondicionado
  • Año construcción 1994
  • Vistas a la montaña
  • Certificado energético :
    Consumo:
    G
    355 kW h m2 / año
    Emisiones:
    G
    154 kg CO2 m2 / año
Anuncio: 31707000000771

Ubicación

Navega por el mapa haciendo clic sobre él
620.000 € Precio del anuncio
1.336 €/m2€/m2 población
1.025 €/m2€/m2 del anuncio
23% más barato que la media*
Ver evolución €/m2 en Llanera
¿Te avisamos cuando tengamos un anuncio como este? Crea tu alerta y nosotros te avisaremos por correo electrónico cuando hayan anuncios nuevos o que sean modificados
 

Contactar ENGEL & VÖLKERS ASTURIAS

Referencia del anuncio habitaclia/I-00XQR7-W-02TGPE:

Verás el teléfono después de enviar tu contacto al anunciante para que te pueda atender.
Verás el teléfono después de contactar
Enviando...