Favorito y comentario
Casa en poblado louras-manduas 29 casa en bandeira, . en Silleda
Características principales
- 296 m2
- 3 hab.
- 2 baños
- 861 €/m2
Información detallada
Casa en Bandeira, Silleda.
**Casa / Chalet Independiente en Venta en Bandeira, Galicia**
Descubre esta espectacular casa independiente, ubicada a solo 5 minutos del casco urbano de Bandeira y a 20 minutos de Santiago de Compostela. Situada en el corazón de Galicia, esta propiedad ofrece una excelente conexión con las grandes ciudades, todo mientras disfrutas de la tranquilidad de la naturaleza. La parcela de 5.581 m² muy soleada está adornada con árboles frutales, creando un lugar ideal para disfrutar de momentos al aire libre.
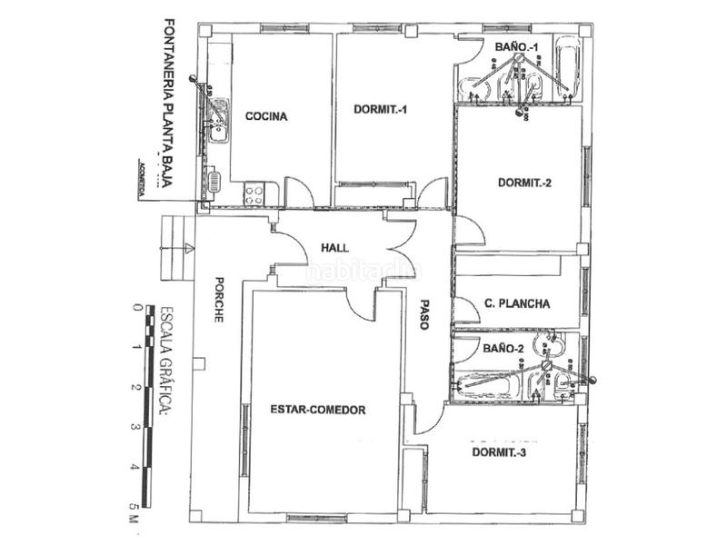
La vivienda cuenta con un diseño funcional, con un bajo diáfano que utilizado como garaje que puede transformarse y adaptarse a tus necesidades. En la planta principal, encontrarás una cocina moderna, un acogedor salón, tres habitaciones y dos baños, uno de ellos en suite, ideal para mayor comodidad. Además, el bajo cubierta diáfano ofrece la posibilidad de crear dos habitaciones adicionales y un baño, brindando aún más espacio para tu familia o invitados.
Con 296 m² construidos y en buen estado, esta casa es perfecta para quienes buscan una segunda residencia o un hogar permanente. ¡No dejes pasar la oportunidad de vivir en este encantador chalet en una ubicación privilegiada! Contáctanos para más información y concertar una visita.
#ref:CAS_316
última modificación
Distribución
- 3 habitaciones
- Superficie 296 m2
- Terreno 5581 m2
- 2 Baños
Características generales
- Sin aire acondicionado
Galería
Ubicación
Poblado Louras-Manduas 29
