Favorito y comentario
Casa en venta , 4 dormitorios. en Lekunberri
Características principales
- 243 m2
- 4 hab.
- 3 baños
- 2.111 €/m2
Información detallada
Casa en venta en Lekunberri, 4 dormitorios.
Espectacular casa de reciente construcción en venta ubicada en Lekunberri, en la comarca Norte de Aralar y a 33 km de la capital de la comunidad, Pamplona. Asimismo se encuentra situada a 47 km de San Sebastián.
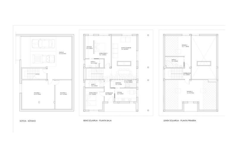
Se trata de una vivienda aislada emplazada en una parcela de aproximadamente 600 m2, la misma posee tres plantas con una superficie interior total de 243 m2.
Las plantas de la vivienda se distribuyen de la siguiente manera:
- Planta sótano: garaje con espacio para dos vehículos y dos amplios trasteros.
- Planta baja: salón con chimenea y comedor en una misma zona diáfana; así como habitación principal con vestidor y baño, habitación secundario, baño secundario y cocina con zona de lavandería y despensa.
- Planta primera: habitación destinada a gimnasio, baño con jacuzzi y estudio con terraza.
En el espacio exterior a la casa se sitúa el jardín, zona destinada a huerta, pavimento de acceso a vivienda, porche lateral y rampa de acceso a garaje.
El inmueble se construyó completamente en el año 2013 con materiales de gran calidad y se dispone del proyecto completo de la vivienda. La instalación de calefacción es individual a través de caldera de gas, con presencia de tres circuitos independientes, radiadores y suelo radiante (dependiendo de la estancia); así como chimenea totalmente operativa.
última modificación
Distribución
- 4 habitaciones
- Superficie 243 m2
- Terreno 600 m2
- 3 Baños
- Trastero
Características generales
- Calefacción
- Plaza parking
- Amueblado
- Año construcción 2013
Galería
Ubicación
Sasita
