Favorito y comentario
Casa exclusiva casa con licencia turística y piscina en la costa brava en Calonge
Características principales
- 264 m2
- 5 hab.
- 3 baños
- 2.557 €/m2
Información detallada
Exclusiva casa con licencia turística y piscina en la Costa Brava
Esta impecable vivienda con LICENCIA TURÍSTICA se ubica en una zona residencial privilegiada, a solo 3 km de las playas más hermosas de la Costa Brava, garantizando confort y estilo en cada rincón.
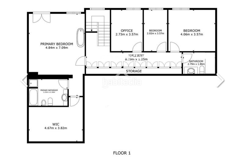
La casa cuenta con 5 dormitorios, 4 de ellos dobles, todos ubicados en la planta baja. Dispone de 2 baños completos, uno de ellos en suite, y un aseo en la primera planta.
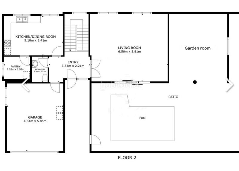
Al entrar, encontramos un salón muy amplio con ventanales orientados al sur y al norte para garantizar luminosidad todo el día, con acceso a una terraza muy privada que alberga una hermosa piscina de agua salada climatizada. La terraza tiene un gran espacio cubierto, ideal como salón exterior. En esta misma planta se encuentra un garaje con acceso interno a la vivienda, una gran cocina-comedor con una espaciosa despensa/lavadero y un aseo de cortesía.
La planta baja es la zona de descanso y cuenta con un enorme dormitorio principal con baño en suite y una habitación contigua que podría ser el quinto dormitorio, una oficina o un gran vestidor. Esta habitación tiene una salida espectacular a la terraza con un jacuzzi a través de las puertas francesas. Además, en la misma planta hay 3 dormitorios más (1 doble y 2 individuales), que comparten un baño completo ubicado al final del pasillo.
La propiedad ofrece vistas a las montañas e invita a disfrutar del aire libre, con sus terrazas, zona de barbacoa, jacuzzi y piscina. Para mayor confort, dispone de aire acondicionado (unidades Daikin), calefacción (gasoil) y ventanas de doble acristalamiento. Los jardines cuentan con sistemas de riego y son de bajo mantenimiento.
Adicionalmente, hay un sótano de aproximadamente 130 m² al que se puede acceder desde el pasillo de la planta inferior. Esta estancia cuenta con conexión de electricidad y agua, lo que la hace ideal para una futura conversión.
Esta vivienda es ideal para familias o para aquellos que necesitan mucho espacio y privacidad, con el valor añadido de su licencia turística.
NO INCLUIDOS GASTOS DE COMPRA: ITP + Notario + Registro.
última modificación
Distribución
- 5 habitaciones
- Superficie 264 m2
- 3 Baños
- Cocina tipo office: No
Características generales
- Calefacción
- Piscina propia
- Sin plaza parking
- Amueblado
- Sin aire acondicionado
- Año construcción 2005
Galería
Ubicación
Cabanyes-Mas Ambrós-Mas Pallí Zuric
