¡Valoración Guardada!
Sólo lo verás tú
¡Comentario guardado!
Añade tu valoración y/o un comentario para este anuncio. Sólo lo verás tu
1.350.000 € Avísame si baja

Casa nueva construcción chalet independiente en El Faro Cullera

  • 250 m2
  • 4 hab.
  • 3 baños
  • 5.400 €/m2

NUEVA CONSTRUCCIÓN Chalet independiente

Vivienda unifamiliar de lujo, nueva construcción a pie de playa ( 50mts) Urbanización Cap Blanc en Cullera.
Planta sótano con capacidad para dos vehículos y lavandería.

1ª planta (zona día) al exterior:

1 habitación y dos baños.

Cocina abierta al salón, el cual presenta doble altura. Escalera de peldaños volada y vidrio, sobre muro de hormigón visto.

Con paellero - barbacoa en zona piscina.

2ª planta (zona noche):

2 habitaciones y una suite con vestidor y baño privado, bañera + ducha con vistas al cielo.

Materiales naturales tanto en exteriores como interiores:

Mampostería de piedra en seco.

Forrado con mármol caliza frentes fachada.

Equipada con placas solares, aerotermia.

Ascensor.

Si tiene alguna duda recuerda que puedes hablar con nosotros.

Características básicas:

Casa o chalet independiente.

2 plantas.

250 m² construidos, 235 m² útiles.

4 habitaciones.

3 baños.

Parcela de 500 m².

Terraza y balcón.

Plaza de garaje incluida en el precio.

Armarios empotrados.

Trastero.

Construido en 2025.

Calefacción central.

Acceso y vivienda adaptados para personas con movilidad reducida.

Equipamiento:

Aire acondicionado.

Piscina.

Jardín.

última modificación

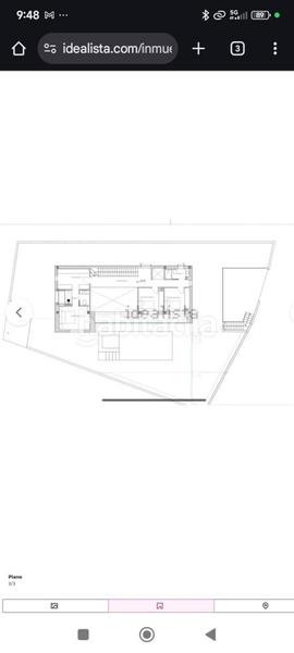
Distribución

  • 4 habitaciones
  • Superficie 250 m2
  • Terreno 500 m2
  • 3 Baños

Características generales

  • Calefacción
  • Piscina propia
  • Plaza parking
  • Aire acondicionado
  • Certificado energético :
    Consumo:
    G
    999 kW h m2 / año
    Emisiones:
    G
    999 kg CO2 m2 / año
Anuncio: 51770000000223

Ubicación

El Faro Carrer Barranc de Palomes

Navega por el mapa haciendo clic sobre él
1.350.000 € Precio del anuncio
2.349 €/m2€/m2 población
5.400 €/m2€/m2 del anuncio
¿Cuanto te gustaría pagar?
Ver evolución €/m2 en Cullera
¿Te avisamos cuando tengamos un anuncio como este? Crea tu alerta y nosotros te avisaremos por correo electrónico cuando hayan anuncios nuevos o que sean modificados
 

Contactar INMOCRESPO

Referencia del anuncio habitaclia/3132:

Verás el teléfono después de enviar tu contacto al anunciante para que te pueda atender.
Verás el teléfono después de contactar
Enviando...