Favorito y comentario
Casa adosada en Samano Castro - Urdiales
Características principales
- 192 m2
- 4 hab.
- 4 baños
- 1.745 €/m2
Información detallada
Inmobiliaria ERA vende chalet adosado a estrenar en Helguera, Sámano.
Sámano es una pedanía de Castro Urdiales, la más grande del municipio, localizada a tan solo 5 minutos en coche. Es un valle localizado al sur, donde abunda la tranquilidad puesto que se encuentra en un entorno rodeado de naturaleza, lo que hace que sea una zona totalmente residencial. Es el lugar perfecto para hacer rutas por el monte o montar en bici por el paraje de la Cubilla, los montes Cerredo, el monte Ventoso, etc.
Cuenta con todos los servicios; farmacia, gimnasio, tienda de alimentación, restaurantes, academia de inglés, línea de autobús con Castro, parada de autobús escolar, etc.
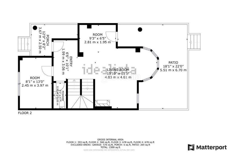
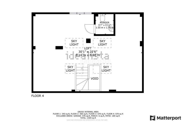
El chalet se divide en cuatro plantas distribuidas de la siguiente manera:
- Planta baja: salón comedor con amplios ventanales con salida a porche y a un amplio jardín, cocina y un aseo.
- Primera planta: tres habitaciones, una de ellas con baño en suite y vestidor, y otro baño en la zona de descanso.
- Bajocubierta: espacio diáfano con aseo.
- Planta sótano: garaje doble, txoco con baño y ducha y un espacio destinado a trastero.
*Haga clic en el video con un recorrido por el inmueble para obtener una mayor información.
Tu inmobiliaria en Castro, de toda la vida.
última modificación
Distribución
- 4 habitaciones
- Superficie 192 m2
- Terreno 557 m2
- 4 Baños
Características generales
- Calefacción
- Sin plaza parking
- Sin aire acondicionado
- Año construcción 2007
Galería
Ubicación
Samano Barrio Sámano-Helguera
