¡Valoración Guardada!
Sólo lo verás tú
¡Comentario guardado!
Añade tu valoración y/o un comentario para este anuncio. Sólo lo verás tú

Casa adosada en Olvera

NICOLAS DE RIBERA

  • 90 m2
  • 2 hab.
  • 1 baño
  • 867 €/m2

NO COBRAMOS COMISIÓN DE INTERMEDIACIÓN AL COMPRADOR

Excelente oportunidad de adquirir en propiedad esta casa adosada residencial con una amplia superficie ubicada en la localidad de Olvera, provincia de Cádiz.

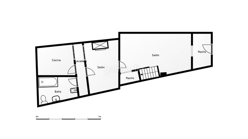
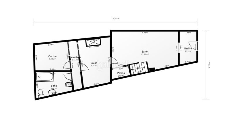
Vivienda desarrollada en dos plantas ( baja y una superior), con baño completo con bañera, chimenea, amplias estancias y pequeña terraza en la planta superior.

Estado interior en buen estado general, y con múltiples opciones y posibilidades para reformar/actualizar. Inmejorable inmueble para desarrollar tu proyecto de reforma o adecuación. Diseña el hogar de tus sueños a medida, gracias a las numerosas posibilidades de la vivienda. Situada en entorno tranquilo, pero a poca distancia del centro de la localidad dónde disponer de servicios cómo supermercados, comercios, hostelería, plazas, etc.

Olvera es un municipio y localidad española de la provincia de Cádiz, en la comunidad autónoma de Andalucía. Está incluido en la comarca de la sierra de Cádiz, y dentro del partido judicial de Arcos de la Frontera.[

Por lo tanto la vivienda disfruta de un entorno tranquilo y natural, pero sin renunciar a todos los servicios, equipamientos y atractivos necesarios para una gran calidad de vida. Sus accesos, comunicaciones y transportes harán que tengas todo a tu alcance.

No lo dudes, invertir en el inmueble que te ofrecemos será una apuesta segura.

Hipoges es una plataforma inmobiliaria donde podrás acceder a miles de activos inmobiliarios de diferentes tipos como viviendas, locales comerciales, terrenos, nueva obra, tanto a nivel particular como para inversores. Hipoges cuenta con una amplia cartera de activos inmuebles tanto en España como en Portugal y Grecia.


¿Necesitas financiación? Te ofrecemos la posibilidad de financiaciones de hasta el 100% para la compra de este inmueble. Entra en Finanwin.com, haz tu simulación y obtén la mejor oferta para tu Hipoteca de la manera más ágil y sencilla.

Última modificación

Distribución

  • 2 habitaciones
  • Superficie 90 m2
  • 1 Baño

Características generales

  • Certificado energético :
    Consumo:
    G
    999 kW h m2 / año
    Emisiones:
    G
    999 kg CO2 m2 / año
Anuncio: 52793000013317

Ubicación

NICOLAS DE RIBERA

Navega por el mapa haciendo clic sobre él
78.000 € Precio del anuncio
1.044 €/m2€/m2 comarca
867 €/m2€/m2 del anuncio
17% más barato que la media*
Ver evolución €/m2 en Olvera
¿Te avisamos cuando tengamos un anuncio como este? Crea tu alerta y nosotros te avisaremos por correo electrónico cuando hayan anuncios nuevos o que sean modificados
 

Contactar Hipoges

Referencia del anuncio habitaclia/REER-00432:

Verás el teléfono después de enviar tu contacto al anunciante para que te pueda atender.
Verás el teléfono después de contactar
Enviando...