¡Valoración Guardada!
Sólo lo verás tú
¡Comentario guardado!
Añade tu valoración y/o un comentario para este anuncio. Sólo lo verás tu
2.490.000 € Avísame si baja

Chalet en Marisol Park - Ortembach - Los Almendros Calp

  • 346 m2
  • 4 hab.
  • 3 baños
  • 7.197 €/m2

Esta espectacular villa de lujo, ubicada en uno de las zonas más prestigiosa en Calpe, ofrece una combinación perfecta de sofisticación y comodidad. Gracias a su ubicación privilegiada, podrá acceder a todos los servicios a pie: a solo 15 minutos del centro de la ciudad y de la playa, y a 5 minutos del supermercado más cercano. Diseñada para quienes buscan un estilo de vida exclusivo, esta residencia ofrece el equilibrio ideal entre modernidad, funcionalidad y lujo.


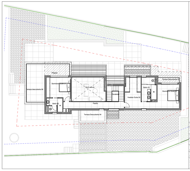
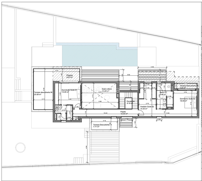
Distribución y Espacios


Planta Baja: Elegancia y Conexión con el Exterior


Al entrar, le recibe un amplio salón de doble altura, con impresionantes revestimientos de madera de roble que aportan calidez y sofisticación al espacio. La cocina, hecha a medida y equipada con electrodomésticos Miele de alta gama, cuenta con acabados de primera calidad, ofreciendo un ambiente funcional y elegante.


Desde el salón, se accede a una espectacular terraza con piscina privada, jacuzzi y una zona de relax rodeada por un exuberante jardín tropical, creando un oasis de tranquilidad. Para mayor comodidad, la piscina cuenta con un sistema de cubierta automática, permitiendo mantenerla en perfectas condiciones cuando no está en uso.


En este nivel, también encontramos:



Una pequeña habitación que puede utilizarse como oficina.
Un baño de cortesía con acceso directo al jardín, ideal tanto para la casa como para la piscina.
Un cuarto de lavandería con un innovador sistema de conducto de ropa desde la planta superior.
Un garaje cerrado con capacidad para un vehículo.


Planta Superior: Privacidad y Vistas Panorámicas


En la planta superior, el dormitorio principal destaca por su amplitud, vestidor integrado y acceso a una terraza privada. Un elegante pasillo conecta con otra habitación en suite, que dispone de su propio baño y acceso a una gran terraza con vistas panorámicas al mar y a la ciudad.


Equipamiento y Tecnología de Última Generación


Esta villa ha sido construida utilizando las más avanzadas tecnologías para garantizar el máximo confort, eficiencia y sostenibilidad:



Sistema domótico: Controle la iluminación, climatización y persianas automáticas desde cualquier dispositivo móvil.
Fachada ventilada, placas solares y sistema de aerotermia, optimizando la eficiencia energética y el respeto al medio ambiente.
Sistema de sonido integrado en toda la vivienda.
Iluminación LED regulable para crear diferentes ambientes.
Calefacción por suelo radiante y aire acondicionado central con control individual en cada estancia.


Esta villa ha sido diseñada para ofrecer una experiencia de vida incomparable, combinando lujo, innovación y una ubicación excepcional.


No pierda la oportunidad de conocer esta magnífica propiedad. ¡Le invitamos a visitarla de día o de noche y descubrir la magia de este exclusivo hogar!

última modificación

Distribución

  • 4 habitaciones
  • Superficie 346 m2
  • Terreno 931 m2
  • 3 Baños
  • Trastero

Características generales

  • Calefacción
  • Piscina propia
  • Plaza parking
  • Amueblado
  • Aire acondicionado
  • Año construcción 2023
  • Certificado energético :
    Consumo:
    G
    999 kW h m2 / año
    Emisiones:
    G
    999 kg CO2 m2 / año
Anuncio: 52627000000060

Ubicación

Marisol Park - Ortembach - Los Almendros

Navega por el mapa haciendo clic sobre él
2.490.000 € Precio del anuncio
4.325 €/m2€/m2 población
7.197 €/m2€/m2 del anuncio
¿Cuanto te gustaría pagar?
Ver evolución €/m2 en Calp
¿Te avisamos cuando tengamos un anuncio como este? Crea tu alerta y nosotros te avisaremos por correo electrónico cuando hayan anuncios nuevos o que sean modificados
 

Contactar Gh Costablanca

Referencia del anuncio habitaclia/VC30180:

Verás el teléfono después de enviar tu contacto al anunciante para que te pueda atender.
Verás el teléfono después de contactar
Enviando...