Favorito y comentario
Chalet gran casa en geneto con jardín y huerta en San Cristóbal de La Laguna
Características principales
- 512 m2
- 5 hab.
- 4 baños
- 1.152 €/m2
Información detallada
GRAN CASA EN GENETO CON JARDÍN Y HUERTA
Impresionante vivienda en entorno natural con gran parcela en Geneto – La Laguna
Ubicada en una zona tranquila y bien comunicada, a tan solo 5 minutos en coche del casco histórico de San Cristóbal de La Laguna y con fácil acceso a la autopista, esta magnífica propiedad ofrece el equilibrio perfecto entre comodidad, espacio y privacidad.
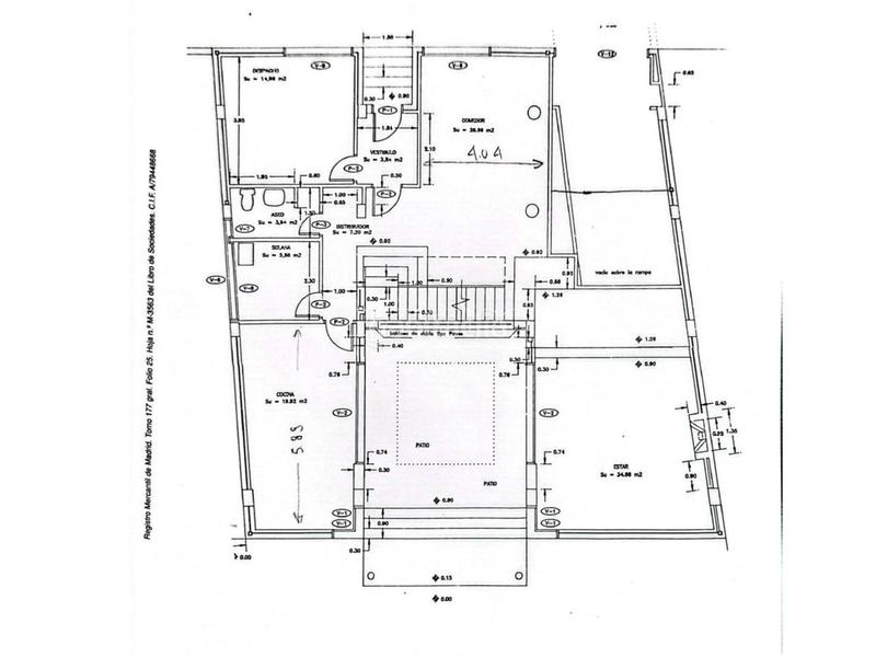
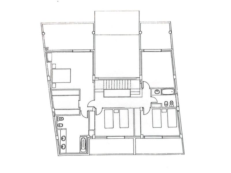
La vivienda cuenta con 512 m² construidos y 378 m² útiles, distribuidos en tres plantas, con una excelente calidad constructiva y detalles que marcan la diferencia.
Características principales:
Parcela de 2.600 m², dividida en dos zonas diferenciadas, más una amplia huerta, ideal para cultivo o zona verde.
5 dormitorios amplios, uno en planta baja (perfecto como despacho o habitación de invitados) y cuatro en la planta superior.
3 baños completos, uno de ellos en suite en el dormitorio principal, más la pre-instalación de 1 baño en el garaje
Armarios empotrados en las habitaciones, ofreciendo gran capacidad de almacenamiento.
Carpintería interior de madera de morera, una esencia noble y duradera.
Doble tabique con cámara de aislamiento, que protege eficazmente contra el frío, el calor y el ruido exterior.
Doble acristalamiento en todas las ventanas, que además cuentan con rejas de seguridad.
Preinstalación para sistema de alarma, aumentando la seguridad del hogar.
Esta propiedad es ideal para quienes buscan una casa familiar amplia, segura y rodeada de naturaleza, sin renunciar a la cercanía a la ciudad y las conexiones principales.
última modificación
Distribución
- 5 habitaciones
- Superficie 512 m2
- Terreno 2600 m2
- 4 Baños
Características generales
- Plaza parking
- Aire acondicionado
Galería
Ubicación
Los Baldíos - Geneto - Guajara San Miguel de Geneto
