Favorito y comentario
Chalet villas de lujo en Cala Ratjada en Cala Ratjada Capdepera
Características principales
- 168 m2
- 3 hab.
- 3 baños
- 5.417 €/m2
Información detallada
Villas de Lujo en Cala Ratjada
Os presentamos estas Villas de Lujo en el residencial La Luz ubicado en Cala Ratjada - Capdepera (Mallorca).
Este nuevo residencial se compone de 26 viviendas con:
- 12 villas pareadas de 3 dormitorios y 3 baños
- 6 villas pareadas con sótano de 3 dormitorios y 4 baños
- 8 bungalows (4 en planta baja con jardín y 4 en planta 1ra con solarium) de 2 dormitorios y 2 baños.
- Todas las viviendas incluyen plaza de aparcamiento y la pre-instalación de estación de carga para vehículos eléctricos.
Un lugar donde disfrutar del fantástico clima de Mallorca gracias a sus grandes ventanales y estructuras exteriores que prolongan el espacio interior, difuminando los límites del dentro-fuera.
Magníficas orientaciones Sur, Este y Oeste, disponiendo todas ellas de muchas horas de sol. La mayoría de viviendas disponen de vistas a la playa piscina central, y varias villas que miran al este dispondrán de vistas de zona arbolada.
Situación inmejorable, en una de las zonas más valoradas de Mallorca y a 500 metros del puerto de Cala Ratjada, Cala Gat y Cala Lliteras. Cercano a diferentes playas y calas, en entorno consolidado, tranquilo, con servicios, y con mucha vegetación.
Zonas comunes: Dispone de una playa piscina de aprox. 550 m2, con una piscina de 100 m2 de lámina de agua, y dos jacuzzis para 4/5 personas, tumbonas, sombrillas y duchas.
última modificación
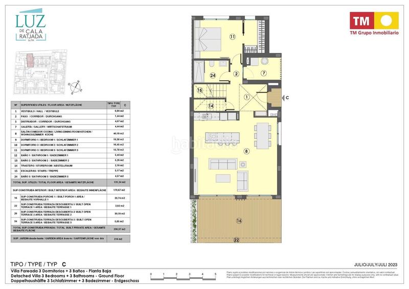
Distribución
- 3 habitaciones
- Superficie 168 m2
- Terraza 64 m2
- 3 Baños
Características generales
- Calefacción
- Plaza parking
- Aire acondicionado
- Año construcción 2024
- Vistas al mar
- Cerca de transporte público
Equipamiento comunitario
- Piscina comunitaria
Galería
Ubicación
Cala Ratjada Carrer Carrer de Joan Moll
