Visita virtual
¡Valoración Guardada!
Sólo lo verás tú
¡Comentario guardado!
Añade tu valoración y/o un comentario para este anuncio. Sólo lo verás tu
525.000 € Avísame si baja

Dúplex en Centre Santa Coloma de Gramenet

  • 223 m2
  • 4 hab.
  • 2 baños
  • 2.354 €/m2

Para los amantes de las fincas con historia. Increíble propiedad en el casco antiguo de Santa Coloma. Vigas de madera, ventanales al jardín, vestíbulo precioso.

En un increíble edificio junto al ayuntamiento. Vivienda dúplex, con balcones exteriores, patio de 100 metros, y terraza de 45 metros. Una joya en el centro de la ciudad.

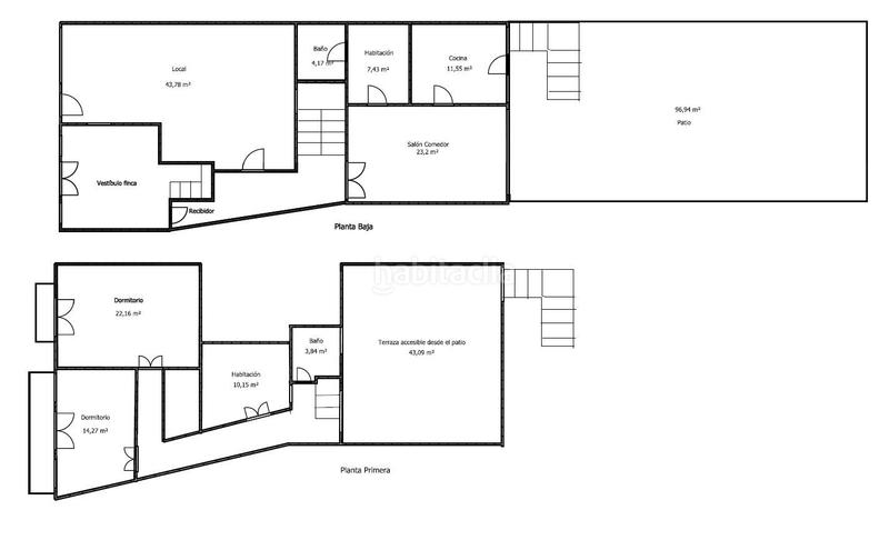
Planta baja: Salón comedor de 35 metros que puede abrirse al patio, acogedor, tranquilo y discreto. Junto al salón, la cocina de 12 metros con zona office, y salida al patio. El patio es amplio, soleado, con un gran potencial paisajístico. Hay además en esta planta de calle, una habitación y un cuarto de baño. Separado por una pared y hace años integrado a la vivienda, hay un local de 45 metros que actualmente está arrendado hasta final de 2026 pero que pasado ese tiempo puede volver a integrarse y entonces las posibilidades aumentan al convertirse en una planta de 110 metros mas el patio de 100 metros. Desde el propio patio subiendo una escalera, se accede a una terraza superior que ocupa la zona del salón la cocina y la habitación. A esta planta baja se accede desde el precioso vestíbulo del edificio, y una vez integrado el local, directamente desde la calle también. Otra posibilidad es mantenerlo como comercio al estar en una excelente ubicación.

Planta primera: Esta planta muestra el verdadero carácter de esta casa, que según cuentan sus propietarios, originalmente era un convento. Consta de 3 dormitorios y un baño. El dormitorio principal deja ver sus techos altos y vigas de madera perfectamente conservados, y el otro dormitorio, de matrimonio también, tiene dos salidas al balcón que domina el edificio, con farolas de la época además en su fachada.

Todo en esta casa respira a historia. Si es un amante de estas edificaciones, no le dejará indiferente. Venga a visitarla.

última modificación

Distribución

  • 4 habitaciones
  • Superficie 223 m2
  • 2 Baños
  • Cocina tipo office

Características generales

  • Calefacción
  • Año construcción 1950
  • Cerca de transporte público
  • Certificado energético :
    Consumo:
    G
    999 kW h m2 / año
    Emisiones:
    G
    999 kg CO2 m2 / año
Anuncio: 30106000000908

Ubicación

Centre MAJOR

Navega por el mapa haciendo clic sobre él
525.000 € Precio del anuncio
2.359 €/m2€/m2 población
2.354 €/m2€/m2 del anuncio
Ver evolución €/m2 en Santa Coloma de Gramenet
¿Te avisamos cuando tengamos un anuncio como este? Crea tu alerta y nosotros te avisaremos por correo electrónico cuando hayan anuncios nuevos o que sean modificados
 

Contactar Sarria Properties Viviendas Con Encanto

Referencia del anuncio habitaclia/SP1197:

Verás el teléfono después de enviar tu contacto al anunciante para que te pueda atender.
Verás el teléfono después de contactar
Enviando...