¡Valoración Guardada!
Sólo lo verás tú
¡Comentario guardado!
Añade tu valoración y/o un comentario para este anuncio. Sólo lo verás tu
1.600.000 € Avísame si baja

Edificio reformado en venta por rentabilidad en Barcelona

  • 752 m2
  • 2.128 €/m2

EDIFICIO REFORMADO EN VENTA POR RENTABILIDAD

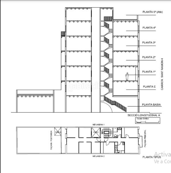
Edificio residencial de PB+5. once viviendas, dos por planta y una en planta ático. Más un local en planta baja.
Viviendas de 42 m2 de superficie útil de media.
El edificio tiene la ITE pasada, la estructura y la envolvente esta en buen estado.
Todas las viviendas disponen de cédula de habitabilidad y certificado energético. Todas las viviendas con alquiladas..
Las viviendas se han ido reformando, actualizando instalaciones, cocinas y baños principalmente
Toda la instalación eléctrica está actualizada y certificada por un ingeniero (RBTE)
La fachada principal se rehabilitó. La fachada posterior
esta en buen estado pero necesita una mano de pintura. La cubierta es plana, practicable, también rehabilitada. El patio de luces también esta rehabilitado, así como el Hall y la escalera.
El edificio le hace falta un toque de buen gusto para recuperar aquellos
elementos constructivos y arquitectónico.
El edificio no dispone de ascensor y no es viable.
El PVP no incluye ITP, honorarios de notario o registro,
El precio final no implica comisión para el comprador.

última modificación

Distribución

  • Superficie 752 m2

Características generales

  • Año construcción 1900
  • Certificado energético :
    Consumo:
    C
    39 kW h m2 / año
    Emisiones:
    C
    152 kg CO2 m2 / año

Equipamiento comunitario

  • Sin ascensor
Anuncio: 52895000000009

Ubicación

Raval

Navega por el mapa haciendo clic sobre él
¿Te avisamos cuando tengamos un anuncio como este? Crea tu alerta y nosotros te avisaremos por correo electrónico cuando hayan anuncios nuevos o que sean modificados
 

Contactar Bars houses Invest

Referencia del anuncio habitaclia/BH14 :

Verás el teléfono después de enviar tu contacto al anunciante para que te pueda atender.
Verás el teléfono después de contactar
Enviando...