Favorito y comentario
Solar industrial suelo urbano en Can Vallhonrat Rubí
Características principales
Información detallada
Suelo Urbano en Rubí
CEDOS SOLUCIONS IMMOBILIÀRIES COMERCIALIZA oportunidad de adquirir este suelo urbano, situado en la ciudad de Rubí, provincia de Barcelona.
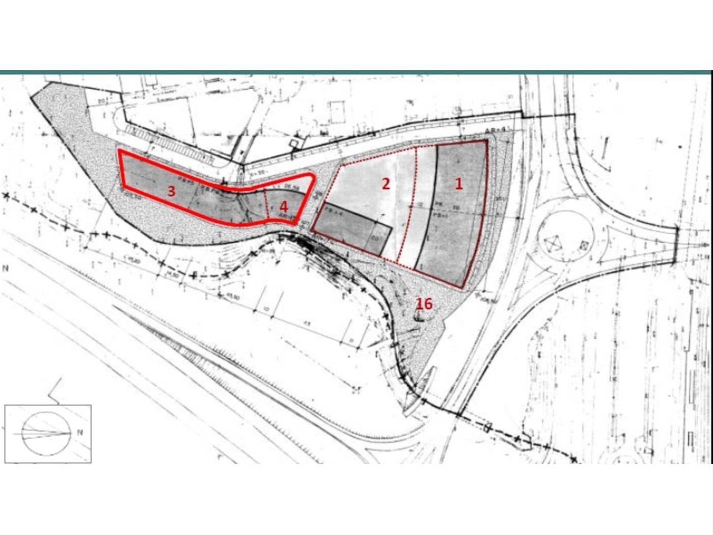
Se trata de una parcela de forma rectangular, con una topografía parcialmente plana, situada al sudeste del municipio de Rubí, en la calle Frederic Mompou, en el Sector B Can Alzamora, justo al lado del Torrent dels Alous.
Se califica como suelo urbano, con una amplia superficie y con una edificabilidad que se rige según el POUM vigente, el cual permite la edificación de PB+PP+buhardilla en tipología residencial unifamiliar. Edificable 11.800m2 Usos admitidos comercial, hotelero, recreativo, oficinas. Sanitario-residencia, educativo, sociocultural, deportivo, vialidad y aparcamientos, industrial
Se encuentra muy bien situado, próximo a supermercado, parque de bomberos y al Hospital General de Catalunya, en el barrio de Mirasol, del municipio de Sant Cugat del Vallés, justo al otro lado de la riera.
Las muy buenas comunicaciones a las carreteras C-16 y AP-7, te brindarán un acceso rápido y conveniente, conectándote con importantes vías de transporte y facilitando los desplazamientos hacia diferentes destinos. Si estás buscando el lugar perfecto para crear un proyecto residencial único, en una zona en constante crecimiento, este suelo es la respuesta.
última modificación
Distribución
- Terreno 2410 m2
Galería
Ubicación
Can Vallhonrat
