¡Valoración Guardada!
Sólo lo verás tú
¡Comentario guardado!
Añade tu valoración y/o un comentario para este anuncio. Sólo lo verás tu
680.000 € Avísame si baja

Local comercial en avenida del doctor gadea 12 en Alicante

  • 300 m2
  • 2 baños
  • 2.267 €/m2

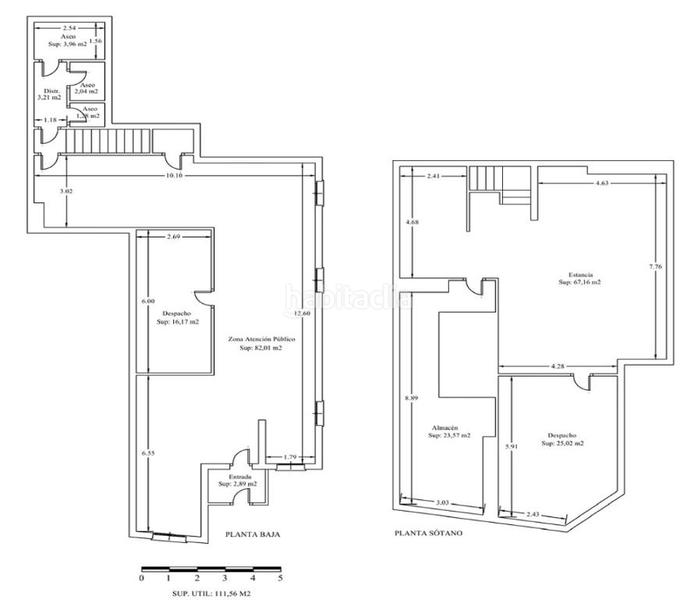
PRECIO NEGOCIABLE. ¡Oportunidad! Se vende amplio local comercial a pie de calle y con mucha visibilidad en pleno centro de Alicante. El local se encuentra en la avenida Doctor Gadea y hace esquina con la calle Rafael Terol. El local, antigua oficina bancaria, consta de 2 plantas. La planta baja, de 138m2, es semi diáfana y tiene 2 aseos (uno de los cuales está adaptado a personas con movilidad reducida), la planta sótano tiene una superficie construida de 162m2 y cuenta con un despacho, almacén y cuarto técnico. Se encuentra al lado del icónico palacete Casa de las Brujas.

última modificación

Distribución

  • Superficie 300 m2

Características generales

  • Aire acondicionado
  • Año construcción 1968
  • Certificado energético :
    Consumo:
    E
    145 kW h m2 / año
    Emisiones:
    E
    27 kg CO2 m2 / año
Anuncio: 42038000000751

Ubicación

Ensanche-Diputación Avenida del Doctor Gadea 12

Navega por el mapa haciendo clic sobre él
¿Te avisamos cuando tengamos un anuncio como este? Crea tu alerta y nosotros te avisaremos por correo electrónico cuando hayan anuncios nuevos o que sean modificados
 

Contactar LEUKANTE REALTY

Referencia del anuncio habitaclia/SH0767:

Verás el teléfono después de enviar tu contacto al anunciante para que te pueda atender.
Verás el teléfono después de contactar
Enviando...