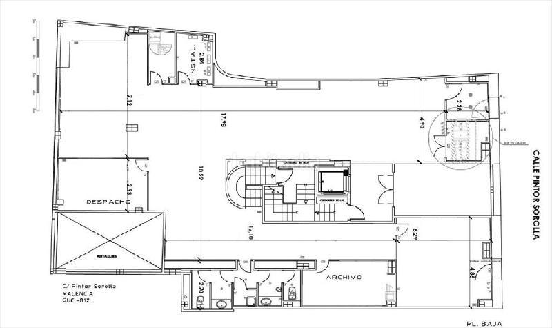
Local comercial de 291,62 m2, situado en la planta baja de un edificio singular, en pleno centro comercial y financiero de la ciudad, en las inmediaciones del Palacio de Justicia y centros comerciales. Conjunto formado por dos locales contiguos unidos interiormente (referencias LG 1812001 y 1812002), con acceso directo a pie de calle, acondicionado como oficina bancaria y distribuido en zona de atención al público, dos despachos, sala de reuniones, archivo, aseos, lavadero y cuarto de instalaciones. Fachada de 13,72 m a calle Pintor Sorolla y 14,79 m a calle Miñana. Algunos de los inmuebles comercializados a través de ABANCA INMOBILIARIA tienen instaladas diversas medidas de seguridad, tales como alarmas, puertas de seguridad, etc…, que no forman parte de la oferta de venta y por lo tanto, no serán objeto de transmisión junto con el inmueble, procediéndose a su retirada, de forma previa a la formalización de la escritura de compraventa.
habitaclia.com no se responsabiliza de los errores que la información mostrada en este mapa pueda contener. El usuario será el responsable del uso que dé a dicha información.
¿Te avisamos cuando tengamos un anuncio como este?Crea tu alerta y nosotros te avisaremos por correo electrónico cuando hayan anuncios nuevos o que sean modificados
Verás el teléfono después de enviar el formulario de Contactar con el anunciante
Introduce el código que aparece en la imagen superior.
Mis notificaciones
Mis búsquedas
Mis favoritos
Anuncios contactados
Alertas de un anuncio:
Te enviamos por correo electrónico los últimos cambios en el inmueble seleccionado
Alertas anuncios similares:
Te enviamos por correo electrónico los últimos inmuebles y promociones que se hayan publicado en habitaclia y que concuerden con las preferencias de tu búsqueda
Añadir a favoritos
Eliminar de favoritos
El Índice de referencia de precios de alquiler es un indicador que publica la Agencia Catalana de la Vivienda y que permite conocer una estimación del precio medio del metro cuadrado de alquiler de una vivienda ubicada en una zona y con determinadas características. También orienta sobre el precio mínimo y máximo que puede llegar a tener esa vivienda.