¡Valoración Guardada!
Sólo lo verás tú
¡Comentario guardado!
Añade tu valoración y/o un comentario para este anuncio. Sólo lo verás tu
2.000.000 € Avísame si baja

Nave industrial nave esquinera única en el maresme en Mataró

  • 2.631 m2
  • 760 €/m2

NAVE ESQUINERA ÚNICA EN EL MARESME

Excepcional edificio industrial Pla d'en Boet, acceso sureste de la capital del Maresme. Esquinera y con vistas a mar, se ubica en parcela de 1.307 m2. El edificio fue construido en 2001 y ofrece un impecable estado de conservación.

Excelente imagen corporativa con área de producción, aparcamiento exterior para 16 vehículos y oficinas con luz natural, organizadas en diversos despachos, salas de reunión también con luz natural y áreas de servicios para el personal con separación vertical realizada mediante sistema de mampara autoportante.

El edificio se entrega con montacargas en uso y accesos TIR / furgoneta.

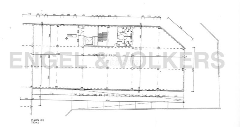
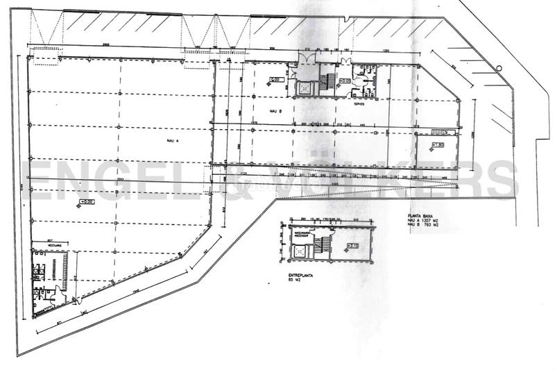
La superficie construida de 2.631 m2 se distribuye en 3 niveles (P-1, PB y P1) de 788 m2 cada uno y 2 altillos que suman un total de 267 m2 adicionales. La altura de PB en las zonas no cubiertas por la estructura del altillo alcanzan los 10,30 mts bajo cumbrera.

Mataró, antigua ciudad romana de 'Iluro', es la capital de la comarca del Maresme. Encabezó uno de los núcleos de la Revolución Industrial de Catalunya gracias a la manufactura textil del género de punto y la metalurgia. La ciudad apuesta por la economía de crecimiento; diversas entidades de Mataró son o han sido relevantes a nivel nacional en diversos ámbitos de la cultura y el deporte. Su excelente geolocalización la sitúa a 1 hora de Barcelona o de Girona, con accesos inmediatos a las autopistas C-32 y AP-7 y a la carretera N-II.


CATALÀ:

Excepcional nau industrial al Pla d'en Boet, accés segur a la capital del Maresme. Esquinera y con vistas a mar, se ubica en parcela de 1.307 m2. El edificio fue construido el 2001 ofereix un estat de conservació impecable.

Excel·lent imatge corporativa amb àrea de producció, aparcament exterior per a 16 vehicles i oficines amb llum natural, organitzades en diversos despatxos, salons de reunió amb llum natural i àrees de serveis al personal amb separació vertical realitzada mitjançant sistema de mampara autoportant.

L'edifici s'entrega amb montacàrregues en ús i accès TIR / furgoneta.

La superfície construïda de 2.631 m2 es distribueix en 3 nivells (P-1, PB i P1) de 788 m2 cada un i 2 altells que sumen un total de 267 m2 addicionals. L’alçada de PB a les zones no cobertes per l’estructura de l’altillo acanzan els 10.30 mts sota cumbrera.

Mataró, antiga ciutat romana d’'Iluro', és la capital de la comarca del Maresme, va encapçalar un dels nuclis de la Revolució Industrial de Catalunya gràcies a la fabricació tèxtil del gènere de punt i la metal·lúrgia. La ciutat aposta per l’economia de creixement, diverses entitats mataronines han estat rellevants a nivell nacional en diversos àmbits de cultura i els esports. La seva excel·lent geolocalització es troba a 1 hora de Barcelona o de Girona, amb accés immediat a les autopistes C-32 i AP-7 i a la carretera N-II.

ENGLISH:

Exceptional industrial property in Pla d'en Boet, southeast access to the capital of Maresme. Corner and overlooking the sea, it is located on a plot of 1,307 sqm. The building was built in 2001 and offers an impeccable state of conservation.

Excellent corporate image with production area, outdoor parking for 16 vehicles and offices with natural light, organized in various offices, meeting rooms with natural light and service areas for the personnel with vertical separation made by means of a self-supporting partition system.

The building is delivered with forklifts in use and TIR / van accesses.

The 2,631 sqm constructed area is distributed over 3 levels (P-1, PB and P1) of 788 sqm each and 2 mezzanines that add up to a total of 267 additional sqm. The PB height in the areas not covered by the loft structure reaches 10.30 meters under the ridge.

Mataró, the ancient Roman city of 'Iluro', is the capital of the Maresme region, led one of the nuclei of the Industrial Revolution of Catalonia thanks to the textile manufacturing of knitwear and metallurgy. The city is committed to the growth economy, various entities in Mataró are or have been relevant at the national level in various fields of culture and sports. Its excellent geolocation places it 1 hour from Barcelona or Girona, with immediate access to the C-32 and AP-7 highways and the N-II road.

FRANÇAIS:

Propriété industrielle d'exception au Pla d'en Boet, accès sud-est à la capitale du Maresme. D'angle et surplombant la mer, il est implanté sur un terrain de 1307 m2. Le bâtiment a été construit en 2001 et offre un état de conservation irréprochable.

Excellente image corporative avec zone de production, parking extérieur pour 16 véhicules et bureaux avec lumière naturelle, organisés en divers bureaux, salles de réunion avec lumière naturelle et zones de service pour le personnel avec séparation verticale réalisée au moyen d'un système de cloisons autoportantes.

Le bâtiment est livré avec les chariots élévateurs en service et les accès TIR / fourgon.

La surface construite de 2 631 m2 est répartie sur 3 niveaux (P-1, PB et P1) de 788 m2 chacun et 2 mezzanines totalisant 2

última modificación

Distribución

  • Superficie 2631 m2

Características generales

  • Año construcción 2001
Anuncio: 1772002714789

Ubicación

Pla d'en Boet

Navega por el mapa haciendo clic sobre él
¿Te avisamos cuando tengamos un anuncio como este? Crea tu alerta y nosotros te avisaremos por correo electrónico cuando hayan anuncios nuevos o que sean modificados
 

Contactar ENGEL & VÖLKERS

Referencia del anuncio habitaclia/BCN-IND-008088:

Verás el teléfono después de enviar tu contacto al anunciante para que te pueda atender.
Verás el teléfono después de contactar
Enviando...