¡Valoración Guardada!
Sólo lo verás tú
¡Comentario guardado!
Añade tu valoración y/o un comentario para este anuncio. Sólo lo verás tu
264.000 € Avísame si baja

Piso 114m2 obra nueva La Lastra 3 habitaciones en La Lastra León

  • desde 114 m2
  • 3 hab.
  • 2 baños
  • 2.316 €/m2
LAZARO CARDENAS
Pertenece a la promoción

LAZARO CARDENAS

Esta promoción tiene 13 tipos de viviendas Ver promoción

PISO OBRA NUEVA LA LASTRA 3 HABITACIONES

OBRA NUEVA EN LA LASTRA (LEÓN) – TERRAZA + GARAJE + TRASTERO INCLUIDOS

Promoción exclusiva de 25 viviendas de obra nueva en La Lastra, una de las zonas con más crecimiento de León, junto al Instituto Nacional de Ciberseguridad.

Ubicación estratégica, moderna y con alta demanda tanto para vivienda habitual como inversión.

VIVIENDAS DE 1, 2, 3 Y 4 DORMITORIOS

Edificio distribuido en 2 portales, con viviendas diseñadas para aprovechar al máximo la luz y el espacio.

Amplias terrazas
Excelente orientación
Distribuciones modernas y funcionales

Todas las viviendas incluyen plaza de garaje y trastero en el precio

EFICIENCIA Y CONFORT (LO QUE DE VERDAD IMPORTA)
Aerotermia centralizada
Suelo radiante y refrescante
Ventilación mecánica con recuperador de calor
Calificación energética A

Menos gasto, más confort. Así de claro.

ZONA CON ALTA DEMANDA Y PROYECCIÓN

La Lastra es una de las zonas más demandadas de León:

Crecimiento constante
Servicios, colegios y zonas verdes
Excelente conexión con el centro

Ideal para vivir o como inversión con alta rentabilidad.

RESERVA AHORA

Promoción en fase de lanzamiento.
Las mejores viviendas se eligen primero.

Contacta para información, planos y precios.

última modificación

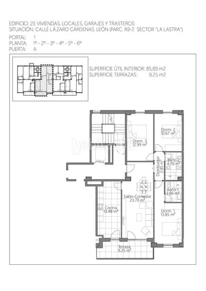
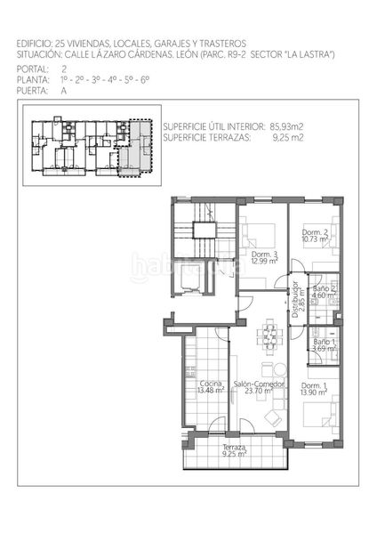
Distribución

  • 3 habitaciones
  • Superficie 114 m2
  • Terraza 9 m2
  • 2 Baños
  • Cocina tipo office: No
  • Trastero

Características generales

  • Calefacción
  • Plaza parking
  • Aire acondicionado
  • Planta número 2
  • Cerca de transporte público
  • Certificado energético :
    Consumo:
    G
    999 kW h m2 / año
    Emisiones:
    G
    999 kg CO2 m2 / año

Equipamiento comunitario

  • Ascensor
Anuncio: 29806000003029

Ubicación

La Lastra Calle Lázaro Cárdenas

Navega por el mapa haciendo clic sobre él
264.000 € Precio del anuncio
2.222 €/m2€/m2 población
2.316 €/m2€/m2 del anuncio
Ver evolución €/m2 en León
¿Te avisamos cuando tengamos un anuncio como este? Crea tu alerta y nosotros te avisaremos por correo electrónico cuando hayan anuncios nuevos o que sean modificados
 

Pertenece a la promoción LAZARO CARDENAS

León - Calle Lázaro Cárdenas
Promoción LAZARO CARDENAS León - Calle Lázaro Cárdenas desde 217.000 €
Entrega: Diciembre 2028
Ver promoción
Otros tipos de vivienda de esta promoción

Contactar SOLINMOBILIARIA

Referencia del anuncio habitaclia/P2 2ºA:

Verás el teléfono después de enviar tu contacto al anunciante para que te pueda atender.
Verás el teléfono después de contactar
Enviando...