¡Valoración Guardada!
Sólo lo verás tú
¡Comentario guardado!
Añade tu valoración y/o un comentario para este anuncio. Sólo lo verás tu
218.000 € Avísame si baja
ha bajado 27.000 €

Piso en Ciudad Jardín - Zoco Córdoba

  • 135 m2
  • 4 hab.
  • 2 baños
  • 1.615 €/m2

Espectacular piso en Ciudad Jardín, Córdoba
Ubicación inmejorable, junto a Calle Antonio Maura y la Avenida Gran Vía Parque, una de las zonas más consolidadas y demandadas de Córdoba, con todos los servicios a un paso: comercios, colegios, transporte público, zonas verdes y conexión rápida al centro.

Características principales:
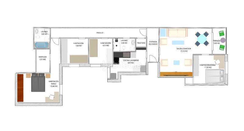
Superficie construida: 135 m²

Planta: Tercera, exterior y muy luminosa

Ascensor: Sí

Plaza de garaje no incluida en el precio (Opcional 27000 euros)

Distribución:
4 amplios dormitorios, todos ellos con armarios empotrados

El dormitorio principal cuenta con vestidor independiente

2 baños completos, funcionales y bien distribuidos

Salón-comedor muy espacioso con acceso a una terraza privada, ideal para disfrutar del aire libre

Cocina independiente, amueblada y totalmente equipada, con zona de lavadero

Trastero incluido, para almacenamiento extra

Calidades y extras:
Aire acondicionado y calefacción centralizada, para el máximo confort en todas las estaciones

Ventanas de doble acristalamiento, que aseguran aislamiento térmico y acústico

Buena distribución, excelente ventilación y luminosidad natural en todas las estancias

Opción a adquirir una segunda cochera y trastero adicional, ideal para familias o quienes necesitan espacio extra

Esta vivienda es ideal para familias que buscan amplitud, comodidad y una ubicación estratégica. Lista para entrar a vivir, con todo lo necesario para disfrutar del día a día sin preocupaciones. ¡No dejes pasar esta oportunidad!
Los honorarios de la Agencia Inmobiliaria no están incluidos en el precio.

última modificación

Distribución

  • 4 habitaciones
  • Superficie 135 m2
  • 2 Baños
  • Cocina tipo office: No

Características generales

  • Sin plaza parking
  • Amueblado
  • Aire acondicionado
  • Cerca de transporte público
  • Certificado energético :
    Consumo:
    G
    999 kW h m2 / año
    Emisiones:
    G
    999 kg CO2 m2 / año

Equipamiento comunitario

  • Ascensor
Anuncio: 54959000000064

Ubicación

Ciudad Jardín - Zoco Calle Julio Pellicer

Navega por el mapa haciendo clic sobre él
218.000 € Precio del anuncio
1.979 €/m2€/m2 distrito
1.615 €/m2€/m2 del anuncio
18% más barato que la media*
Ver evolución €/m2 en Córdoba (Poniente-Sur)
¿Te avisamos cuando tengamos un anuncio como este? Crea tu alerta y nosotros te avisaremos por correo electrónico cuando hayan anuncios nuevos o que sean modificados
 

Contactar Urban Real Estate

Referencia del anuncio habitaclia/162:

Verás el teléfono después de enviar tu contacto al anunciante para que te pueda atender.
Verás el teléfono después de contactar
Enviando...