¡Valoración Guardada!
Sólo lo verás tú
¡Comentario guardado!
Añade tu valoración y/o un comentario para este anuncio. Sólo lo verás tu
32.000 € Avísame si baja
ha bajado 24.400 €

Piso san telmo en San Telmo - Federico Mayo - El Porta Jerez de la Frontera

  • 74 m2
  • 3 hab.
  • 1 baño
  • 432 €/m2

Piso en Jerez de la Frontera San Telmo

Campaña de navidad.

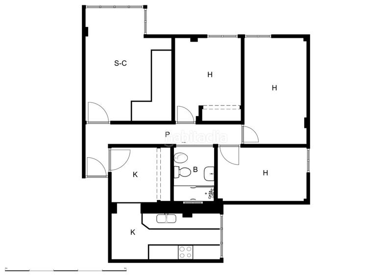
Excelente piso de tres dormitorios y un baño. Se encuentra en la planta cuarta de un edificio residencial de cinco plantas sobre rasante. Sin ascensor. La vivienda se distribuye en tres dormitorios con armarios empotrados, amplio salón-comedor, cocina independiente y un cuarto de baño.

No se puede visitar el interior del inmueble por su situación de SIN POSESION y está en venta con esta situación. ¡¡¡OPORTUNIDAD PARA INVERSORES!!! El estado de sin posesión y/o los impedimentos para que el inmueble pueda ser visitado libremente por los técnicos impidiendo su tasación oficial, por lo que el inmueble, mientras perdure la situación, no podrá ser hipotecado, salvo que el comprador presente otro tipo de garantías en caso de solicitarse financiación, como puede ser que tenga otra propiedad o algún tipo de avalista.
Las fotografías pueden no corresponderse con el estado actual del inmueble.
Si desea ampliar información: /
El precio no tiene incluido aquellos gastos que por Ley le pudiera corresponder a la parte adquiriente tales como IVA/ITP, Notaria, Registro.
Ikesa es agencia homologada de diferentes Entidades Financieras, disponemos de la mayor oferta de la provincia, visite nuestra web: ikesainmobiliaria.es

última modificación

Distribución

  • 3 habitaciones
  • Superficie 74 m2
  • 1 Baño

Características generales

  • Año construcción 1972
  • Certificado energético :
    Consumo:
    G
    999 kW h m2 / año
    Emisiones:
    G
    999 kg CO2 m2 / año
Anuncio: 24308000038795

Ubicación

San Telmo - Federico Mayo - El Porta

Navega por el mapa haciendo clic sobre él
32.000 € Precio del anuncio
1.481 €/m2€/m2 distrito
432 €/m2€/m2 del anuncio
71% más barato que la media*
Ver evolución €/m2 en Jerez de la Frontera (Jerez sur)
¿Te avisamos cuando tengamos un anuncio como este? Crea tu alerta y nosotros te avisaremos por correo electrónico cuando hayan anuncios nuevos o que sean modificados
 

Contactar IKESA.

Referencia del anuncio habitaclia/CA17200098:

Verás el teléfono después de enviar tu contacto al anunciante para que te pueda atender.
Verás el teléfono después de contactar
Enviando...