¡Valoración Guardada!
Sólo lo verás tú
¡Comentario guardado!
Añade tu valoración y/o un comentario para este anuncio. Sólo lo verás tu
1.300.000 € Avísame si baja

Piso exterior muy luminoso de cuatro habitaciones en Madrid

  • 191 m2
  • 4 hab.
  • 3 baños
  • 6.806 €/m2

PISO EXTERIOR MUY LUMINOSO DE CUATRO HABITACIONES

PISO EXTERIOR MUY LUMINOSO DE CUATRO HABITACIONES

Ponemos a la venta este luminoso piso exterior en Cuzco, una de las zonas residenciales más consolidadas y mejor comunicadas de Madrid.

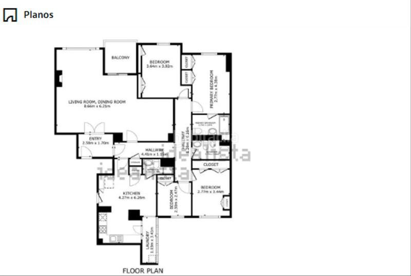
Se trata de una 7ª planta exterior con terraza con 191 m2 según catastro, y 170 m2 útiles, lo cuales están distribuidos en un hall de entrada desde que se accede al salón comedor, con terraza, al pasillo que distribuye los dormitorios y a la cocina, con tendedero.

La zona de noche está compuesta por cuatro habitaciones, una de ellas en suite y otro cuarto de baño completo que da servicio a las otras tres habitaciones. Además dispone en la cocina de un tercer cuarto de baño de servicio.

Dispone de puerta principal y puerta de servicio. Calefacción y agua caliente central. La vivienda se encuentra en un edificio señorial con portero físico y varios ascensores.

Además dispone de dos plazas de garaje y un trastero en el mismo edifico al que se accede con ascensor y con portero 24 horas.

Sin duda una casa acogedora y alegre, que con su excelente distribución permite una ventilación cruzada y combina a la perfección amplitud, comodidad y ubicación privilegiada, convirtiéndola en una opción ideal para familias que buscan una vivienda confortable en el corazón de Madrid, como para inversores que deseen una propiedad lista para entrar a vivir o alquilar.

La zona de Cuzco-Castillejos, es sinónimo de calidad de vida en Madrid. Con calles amplias, bien cuidadas y rodeadas de árboles, ofrece un ambiente residencial tranquilo y seguro, ideal para quienes buscan comodidad y bienestar. La zona destaca por su excelente infraestructura, con supermercados, centros de salud, colegios de alto nivel y una variada oferta gastronómica y de ocio. Cuzco es conocido también por su cercanía al Paseo de la Castellana, uno de los principales ejes financieros y comerciales de Madrid, lo que aporta una gran comodidad para quienes trabajan en el centro empresarial de la capital.

última modificación

Distribución

  • 4 habitaciones
  • Superficie 191 m2
  • 3 Baños
  • Cocina tipo office: No

Características generales

  • Calefacción
  • Sin plaza parking
  • Sin aire acondicionado
  • Planta número 7
  • Año construcción 1977
  • Certificado energético :
    Consumo:
    G
    999 kW h m2 / año
    Emisiones:
    G
    999 kg CO2 m2 / año

Equipamiento comunitario

  • Ascensor
  • Piscina comunitaria
Anuncio: 53102000000033

Ubicación

Bellas Vistas

Navega por el mapa haciendo clic sobre él
1.300.000 € Precio del anuncio
6.311 €/m2€/m2 distrito
6.806 €/m2€/m2 del anuncio
¿Cuanto te gustaría pagar?
Ver evolución €/m2 en Madrid (Tetuán)
¿Te avisamos cuando tengamos un anuncio como este? Crea tu alerta y nosotros te avisaremos por correo electrónico cuando hayan anuncios nuevos o que sean modificados
 

Contactar GRUPO ALMAN

Referencia del anuncio habitaclia/Cuzco Castillejos:

Verás el teléfono después de enviar tu contacto al anunciante para que te pueda atender.
Verás el teléfono después de contactar
Enviando...