¡Valoración Guardada!
Sólo lo verás tú
¡Comentario guardado!
Añade tu valoración y/o un comentario para este anuncio. Sólo lo verás tu
339.000 € Avísame si baja
ha bajado 6.000 €

Piso inversión segura en villajoyosa piso convertido en clínica www.inmobiliarialesdunes.com en Vila Joiosa (la)

Calle PIZARRO

  • 317 m2
  • 10 hab.
  • 2 baños
  • 1.069 €/m2

Inversión Segura en Villajoyosa Piso convertido en Clínica www.inmobiliarialesdunes.com

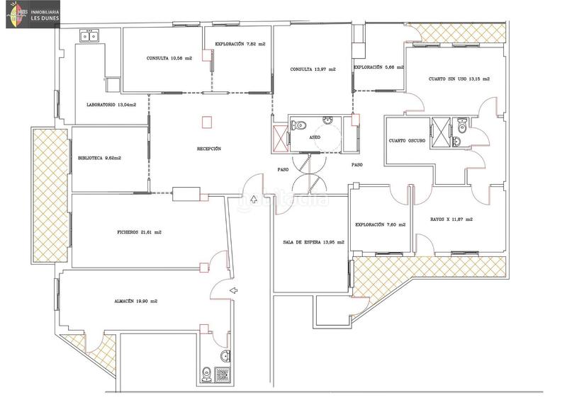
!Gran oportunidad de inversión en Villajoyosa! Este magnífico piso, situado a solo 200 metros de la playa y ubicado en segunda línea, abarca un amplio espacio de 317 metros cuadrados. Ha sido transformado con exquisito detalle para funcionar como una moderna clínica. Al ingresar, encontrarás elegantemente lacada carpintería blanca que complementa el acogedor suelo de parquet. La orientación suroeste asegura abundante luz natural durante todo el día. Además cuenta con acceso para personas con movilidad reducida y equipamiento moderno como aire acondicionado central, alarma contra incendios y calefacción central entre otros elementos esenciales. Los techos altos aportan amplitud al ambiente general del inmueble idealmente adaptado tanto para uso residencial como comercial; se localiza cerca de autobuses, servicios médicos e instalaciones recreativas lo que acentúa su atractivo versátil.Debido a los buenos rendimientos económicos esperados (entre el 10% -20%), esta propiedad no sólo es lujosa sino también ofrece una opción sólida inmersiva financiera.Subrayando la posibilidad alquiler sujeto Acreditación Solvencia Económica.Ponte en contacto hoy mismocon nosotrospara programar tu visita!

última modificación

Distribución

  • 10 habitaciones
  • Superficie 317 m2
  • Terraza 10 m2
  • 2 Baños
  • Trastero

Características generales

  • Calefacción
  • Aire acondicionado
  • Año construcción 1974
  • Cerca de transporte público
  • Certificado energético :
    Consumo:
    G
    999 kW h m2 / año
    Emisiones:
    G
    999 kg CO2 m2 / año

Equipamiento comunitario

  • Ascensor
Anuncio: 19415000002557

Ubicación

Centro Urbano Calle PIZARRO

Navega por el mapa haciendo clic sobre él
339.000 € Precio del anuncio
3.724 €/m2€/m2 distrito
1.069 €/m2€/m2 del anuncio
71% más barato que la media*
¿Cuanto te gustaría pagar?
Ver evolución €/m2 en Vila Joiosa (la) (Centro Urbano)
¿Te avisamos cuando tengamos un anuncio como este? Crea tu alerta y nosotros te avisaremos por correo electrónico cuando hayan anuncios nuevos o que sean modificados
 

Contactar LES DUNES

Referencia del anuncio habitaclia/ILDP2289:

Verás el teléfono después de enviar tu contacto al anunciante para que te pueda atender.
Verás el teléfono después de contactar
Enviando...