Favorito y comentario
Planta baja en Port Nou - Port Verd - Port Vell Son Servera
Características principales
- 95 m2
- 3 hab.
- 2 baños
- 3.645 €/m2
Información detallada
INVERSIONES GRUP REAL ESTATE BOUTIQUE os presenta esta fantástica promoción de viviendas de precio limitado (HPL) en Cala Bona, con fecha prevista de entrega para Diciembre 2025.
El edificio dispone de ascensor, y se compone de 3 plantas, con 13 viviendas por planta, siendo así un total de 38 vecinos. La promoción cuenta con viviendas de 1, 2 y 3 dormitorios con amplias terrazas y jardines. Todas las viviendas incluyen 1 o 2 plazas de garaje (en función del piso) y 1 trastero. Las plantas bajas tienen grandes terrazas y jardines privados, y los áticos se benefician de unas bonitas vistas despejadas desde las terrazas hacia la montaña y el mar. Todas las viviendas disponen asimismo de terraza con amplios ventanales, consiguiendo así, máxima luminosidad y sensación de amplitud.
Las viviendas están construidas con los más altos estándares de calidad y eficiencia energética, de las que destacamos:
Doble pared de aislamiento con sistema SATE en fachada.
Autoconsumo energético con placas solares para zonas comunitarias.
Carpintería exterior de aluminio con baja transmisión térmica y cristales dobles con cámara aislante y control solar.
Carpintería interior de madera.
Aire acondicionado frío/caliente mediante Split.
Suelo porcelánico.
Certificado energético A.
Ventilación cruzada.
Plaza de parking y trastero.
Terraza y/o jardín.
Ascensor.
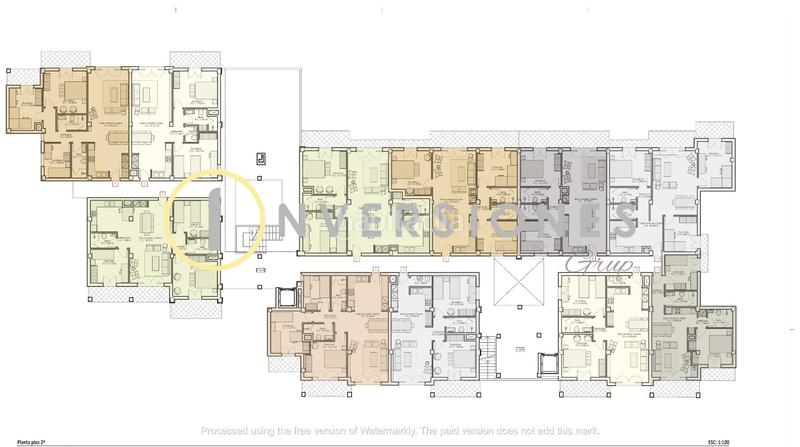
En este anuncio tenemos una segunda planta de 95,69 m2 construidos con terraza de 15,28 m2, con trastero y plaza de parking incluidas en el precio. Pero hay diferentes precios en función de la altura del piso y de los m2 de la vivienda, consultar para más información:
Viviendas de 1 dormitorio (NO QUEDAN DISPONIBLES).
Viviendas de 2 dormitorios desde € (81,24 m2 construidos / 69,43 m2 útiles).
Viviendas de 3 dormitorios desde € (95,69 m2 construidos / 83,64 m2 útiles).
Zona muy tranquila, con muy buenas comunicaciones situada en Cala Bona, en la costa este de Mallorca, a 73 kms de Palma de Mallorca y a 22 kms de Manacor. Esta zona costera se caracteriza por sus calas de belleza natural, playas de arenas blancas y aguas cristalinas. Un lugar ideal para pasar tiempo en familia y amigos, y para la práctica de deportes acuáticos, golf, bicicleta, senderismo, etc. Se encuentran muy cerca de la promoción, el Club deportivo de Cala Bona, el pueblo de Son Servera, y la zona dispone de una amplia variedad de servicios de transporte, tiendas y restaurantes. Se trata de una oportunidad única para vivir.
No pierdas ésta ocasión y pregúntanos más información o solicita una visita inmediatamente al o por WhatsApp.
última modificación
Distribución
- 3 habitaciones
- Superficie 95 m2
- Terraza 15 m2
- 2 Baños
- Lavadero
- Trastero
Características generales
- Calefacción
- Plaza parking
- Aire acondicionado
- Año construcción 2025
- Vistas al mar
- Cerca de transporte público
Equipamiento comunitario
- Ascensor
Galería
Ubicación
Port Nou - Port Verd - Port Vell Ronda Revolt dels Prats
