Favorito y comentario
Terreno residencial en calle constitución 5 en Morcín
Características principales
- 3.412 m2
- 73 €/m2
Información detallada
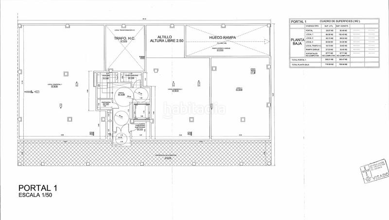
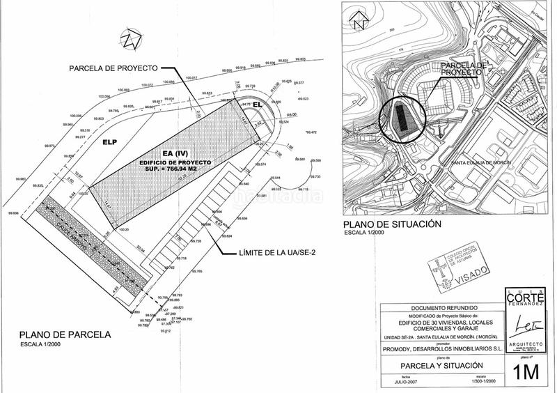
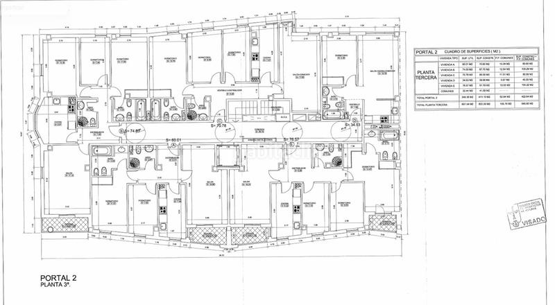
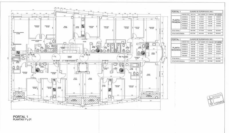
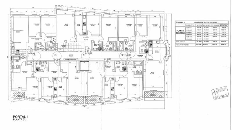
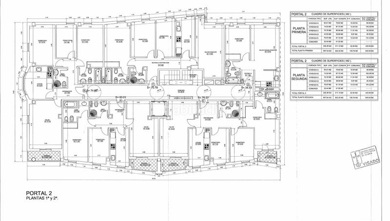
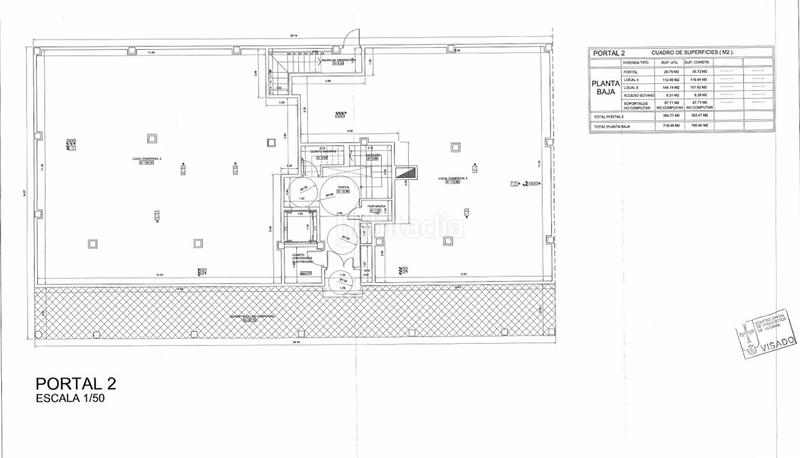
Se VENDE SOLAR URBANO EN Santa Eulalia de Morcín, para EDIFICACIÓN RESIDENCIAL en altura con 30 VIVIENDAS, LOCALES COMERCIALES y PLAZAS DE GARAJE:
Cuenta con Proyecto Básico.
CALIFICACIÓN URBANÍSTICA Y EDIFICABILIDAD Uso Característico. Vivienda en categorías 1º, 2º y 3º Usos Compatibles. - Uso comercial, oficinas, garaje-aparcamiento, industrial, hotelero, espectáculos, reunión recreo, cultural, deportivo y sanitario.
Aprovechamiento. 0,80 m2/m2 Fondo Máximo edificable. 12,00 m Ocupación Máxima. 50% Parcela Mínima. 400 m2 Otros condicionantes. En edificios cuya altura máxima no supere las dos plantas incluida la planta baja, se admite uso de vivienda en la planta bajocubierta. Se considera la superficie total edificada indicada en el proyecto básico, donde se indica un edificio de 30 viviendas, locales comerciales y garajes.
Según el Estudio de Detalle aprobado y la subdivisión de la unidad de actuación Superficie del ámbito: m2- Porcentaje de propiedad: 100%- Superficie máxima edificable uso residencial: m2 con una cesión del 10% Se considera la promoción del proyecto básico aportado que consiste en un edificio aislado de 30 viviendas, comerciales y garajes. con una altura de 4 plantas (baja +3) y un sótano con las siguientes superficies: - Uso residencial: m2- Uso garaje: 677,24 m2- Uso trastero: 85,58 m2
Santa Eulalia de Morcín es la capital del concejo, y está a tan solo 10 km de Oviedo por autovía. Cuenta con todo tipo de servicios: colegio, supermercado, centro de salud, piscina pública, bares, bancos etc.
última modificación
Distribución
- Superficie 3412 m2
Galería
Ubicación
Calle Constitución 5
