¡Valoración Guardada!
Sólo lo verás tú
¡Comentario guardado!
Añade tu valoración y/o un comentario para este anuncio. Sólo lo verás tu
4.000.000 € Avísame si baja

Terreno residencial en Puerto Deportivo Torrevieja

  • 1.090 m2
  • 3.670 €/m2

Ubicación Estratégica en el Centro Urbano
El edificio se levantará en una ubicación privilegiada del centro de Torrevieja, en la intersección de las calles Villa Madrid y San Pascual. Este solar se encuentra en un entorno de suelo urbano consolidado, predominantemente residencial, pero próximo al Puerto Deportivo, que está emergiendo como el epicentro de una nueva imagen de la ciudad.

La transformación del Puerto de Torrevieja, prevista para finales de 2024, incluirá una nueva zona de ocio que contará con un moderno centro comercial con tiendas, restaurantes, cines, bolera y otras opciones de entretenimiento, distribuidos en 8.500 m². Además, se construirá un estacionamiento subterráneo con capacidad para 600 vehículos, consolidando al área como un atractivo polo de inversión y desarrollo urbano.

Con este tipo de proyectos, el Ayuntamiento de Torrevieja busca posicionar la ciudad como una alternativa competitiva frente a destinos costeros más saturados de la Comunidad Valenciana, como Benidorm o Gandía, atrayendo tanto a visitantes como a inversores privados interesados ??en la renovación de la oferta turística. y urbano de la ciudad.

Contexto Turístico y Hotelero
Torrevieja, localizada en la comarca de la Vega Baja del Segura, ha experimentado una evolución significativa desde sus orígenes como pueblo dedicado a la producción salinera, la pesca y la navegación. A partir de los años 60, el auge turístico impulsó un modelo de crecimiento basado en el desarrollo de residencias estacionales, en detrimento de la oferta hotelera.

Actualmente, Torrevieja se enfrenta a una notable escasez de plazas hoteleras, con apenas una docena de hoteles, ninguno de ellos de 4 estrellas en el centro urbano. Sin embargo, existen perspectivas de expansión gracias a acuerdos como el del Grupo Baraka con NH Hoteles, que convertirá una de las torres Sinforosa en un hotel de larga estancia con 16.000 m² de edificabilidad. Este enfoque busca responder a la demanda de los turistas que eligen Torrevieja por su clima, servicios y atractiva oferta de ocio.

Detalles del Proyecto
El nuevo edificio se construirá sobre un solar de 1.090 m², resultado de la unión de tres fincas registrales colindantes. Este espacio está situado en una manzana de alta densidad residencial y contará con una edificación adaptada a las normativas urbanísticas actuales. Según el PGOU y su Modificación 74 para el “Fomento del Uso Hotelero”, las características del proyecto son las siguientes:

Altura Máxima:

5 plantas más ático en la calle Villa Madrid.
3 plantas más ático en la calle San Pascual.
Posibilidad de añadir dos áticos retranqueados en ambas fachadas para uso hotelero, además de una planta técnica retranqueada para instalaciones.
Edificabilidad y Uso del Suelo:

El 100% del solar podrá ocuparse en la planta baja.
En plantas superiores, la ocupación máxima será de 22 metros de fondo edificable, respetando los patios de ventilación e iluminación.
Las alturas máximas serán de 480 cm en planta baja y 330 cm en las plantas superiores.
Zonas No Computables para la Edificabilidad:

Áreas comunes propias de establecimientos hoteleros, como vestíbulos, salones, restaurantes, cafeterías, administración, cocina, lavandería, gimnasio o piscina cubierta. Este incentivo busca atraer inversión en infraestructura turística.
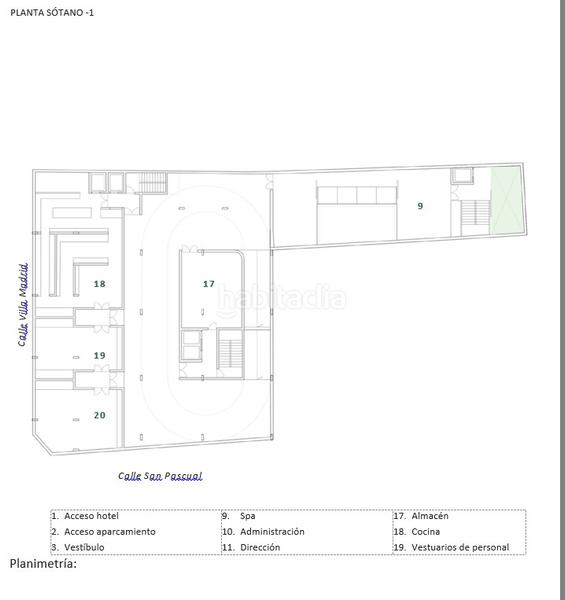
Sótanos:

Se permitirá la construcción de una o más plantas bajo rasante para uso de garaje, almacén o instalaciones complementarias.
Este proyecto no solo responde a la demanda turística, sino que también contribuye al crecimiento ordenado y sostenible de Torrevieja, destacándola como un destino emergente en la Comunidad Valenciana.

Le informamos que nuestros honorarios corresponden al 3% del valor total de la operación. Este porcentaje refleja nuestro compromiso con la calidad del servicio, la atención personalizada y el respaldo profesional que nos caracteriza.

Quedamos a su disposición para cualquier consulta o aclaración adicional.

última modificación

Distribución

  • Superficie 1090 m2
Anuncio: 19520003274081

Ubicación

Puerto Deportivo

Navega por el mapa haciendo clic sobre él
¿Te avisamos cuando tengamos un anuncio como este? Crea tu alerta y nosotros te avisaremos por correo electrónico cuando hayan anuncios nuevos o que sean modificados
 

Contactar Real Estate Agent Api Aznar

Referencia del anuncio habitaclia/1374:

Verás el teléfono después de enviar tu contacto al anunciante para que te pueda atender.
Verás el teléfono después de contactar
Enviando...