Favorito y comentario
Sólo lo verás tú
375.000 €
Avísame si baja
Terreno residencial parcela con vistas espectaculares en Benissa
Características principales
- 1.056 m2
- 355 €/m2
Información detallada
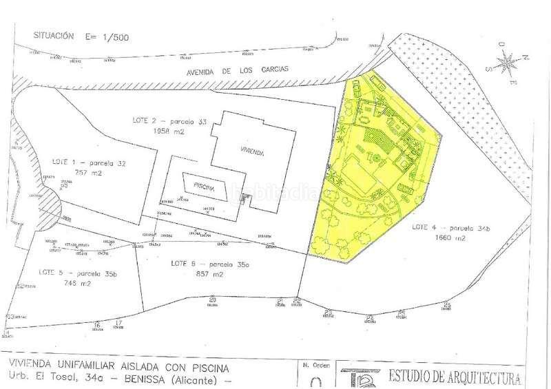
Parcela con vistas espectaculares
La parcela tiene unas vistas panorámicas al mar desde Moraira a Calpe . La parcela tiene un tamaño de 1.056 m2, con posibilidad de construir una casa, tiene ya un proyecto de arquitectura básico y de ejecución ya pagado. Y tiene una parcela colindante con 1,565m2, con un anteproyecto hecho. (REF. 9193)
Pedir más datos al anuncianteúltima modificación
Distribución
- Superficie 1056 m2
Galería
Ubicación
La Fustera
Navega por el mapa haciendo clic sobre él
habitaclia.com no se responsabiliza de los errores que la información mostrada en este mapa pueda contener. El usuario será el responsable del uso que dé a dicha información.
¿Te avisamos cuando tengamos un anuncio como este?
Crea tu alerta y nosotros te avisaremos por correo electrónico cuando hayan anuncios nuevos o que sean modificados