¡Valoración Guardada!
Sólo lo verás tú
¡Comentario guardado!
Añade tu valoración y/o un comentario para este anuncio. Sólo lo verás tú
300.000 € Avísame si baja

Terreno residencial parcela edificable en el centro con anteproyecto de vivienda unifamiliar de 384 m en Cabrera de Mar

Sant Vicens

  • 684 m2
  • 439 €/m2

Parcela edificable en el centro de Cabrera de Mar con anteproyecto de vivienda unifamiliar de 384 m

En pleno centro de Cabrera de Mar, presentamos esta excelente parcela llana de 684 m², formada por 2 parcelas, ubicada en una posición elevada sobre la calle que permite plantear de forma muy funcional la zona de garaje y el acceso a la vivienda.
Una oportunidad muy interesante para quienes buscan construir una casa amplia, cómoda y bien orientada, en un entorno residencial consolidado, con todos los servicios a pie de pueblo y a tan solo 2,8 km del mar.


Características urbanísticas
La parcela cuenta con una configuración muy atractiva para desarrollar una vivienda unifamiliar de alto nivel:
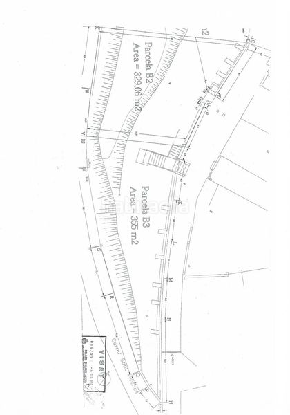
Superficie de terreno: 684 m²
Parcela llana, elevada respecto a la calle
Clave urbanística: 1B
Edificabilidad: 410 m²
Ocupación máxima: 205 m²
Altura permitida: planta baja + 1 planta piso
Separación a vial: 3 m
Separación a vecinos: 2 m
Fachada: 61 m
Orientación sur
Vistas al pueblo y a la montaña
Gracias a su edificabilidad y a su amplia fachada, esta parcela permite proyectar una vivienda luminosa, bien distribuida y con una presencia arquitectónica muy atractiva.
Anteproyecto incluido
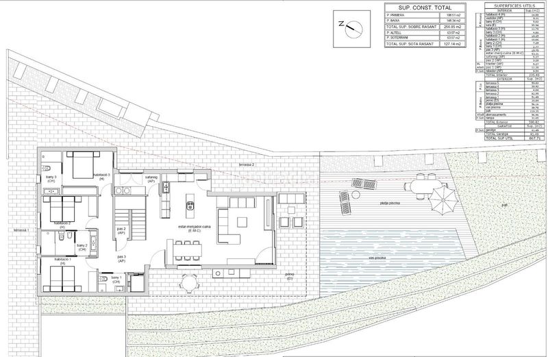
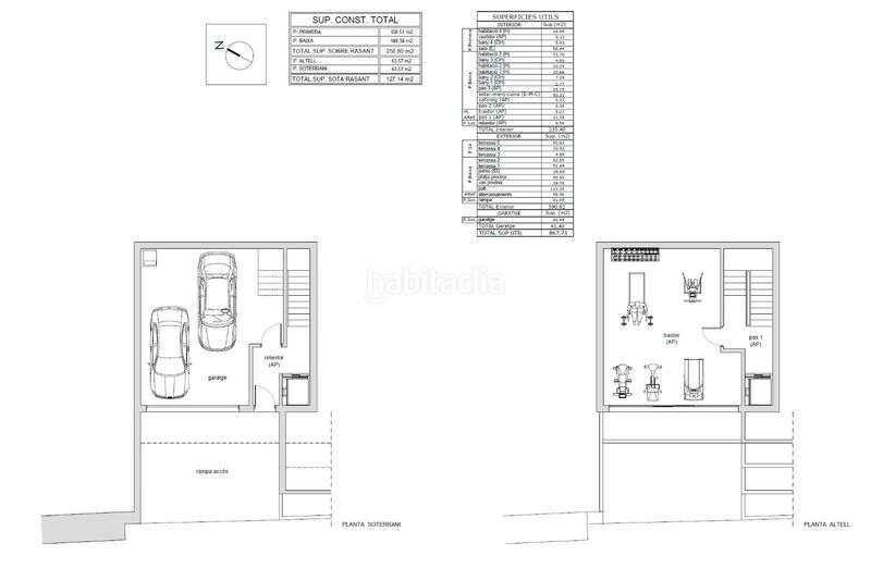
La propiedad dispone de un estudio-anteproyecto para una vivienda unifamiliar de 384 m² construidos, de los cuales 257 m² serían sobre rasante, distribuida en:
Planta garaje con altillo
Planta baja
Planta piso
El programa previsto contempla:
4 habitaciones, de las cuales 3 son suites, una de ellas con vestidor
Salón-comedor-cocina de 53 m², con salida directa al porche, jardín y piscina
4 baños
Sala polivalente
Gimnasio-trastero
Ascensor
Terrazas
Piscina
Jardín


Un planteamiento ideal para crear una vivienda familiar de diseño contemporáneo, funcional y preparada para disfrutar tanto del interior como de las zonas exteriores.
Ubicación
Su ubicación es uno de sus grandes atractivos. Situada en el centro de Cabrera de Mar, a solo 400 metros del Ayuntamiento, permite disfrutar de la tranquilidad de un entorno residencial con la comodidad de tener cerca todos los servicios del día a día:
Escuelas e instituto
Supermercados, panaderías, carnicerías y pescaderías
Farmacias y centros de atención médica
Zonas verdes, parques y actividades para toda la familia
Una parcela pensada para quienes quieren construir una casa a medida en uno de los pueblos más agradables del Maresme, combinando privacidad, vistas, orientación y cercanía al mar.
Una oportunidad excelente para desarrollar una vivienda unifamiliar amplia, luminosa y con todas las comodidades, en una ubicación céntrica y muy bien conectada.








Última modificación

Distribución

  • Superficie 684 m2
Anuncio: 13103004032629

Ubicación

Sant Vicens

Navega por el mapa haciendo clic sobre él
¿Te avisamos cuando tengamos un anuncio como este? Crea tu alerta y nosotros te avisaremos por correo electrónico cuando hayan anuncios nuevos o que sean modificados
 

Contactar CORREDOR MATÓ

Referencia del anuncio habitaclia/2681:

Verás el teléfono después de enviar tu contacto al anunciante para que te pueda atender.
Verás el teléfono después de contactar
Enviando...