¡Valoración Guardada!
Sólo lo verás tú
¡Comentario guardado!
Añade tu valoración y/o un comentario para este anuncio. Sólo lo verás tu
69.500 € Avísame si baja
ha bajado 400 €

Terreno residencial parcela en venta en boveralssaldonar en Vinaròs

  • 345 m2
  • 201 €/m2

Parcela en venta en BoveralsSaldonar

En una de las zonas con mayor proyección de la costa norte, este terreno esquinero de 345 m² ofrece una oportunidad única para construir la casa que siempre has imaginado. Situado en un entorno de edificaciones modernas y a escasa distancia de algunas de las mejores playas de la zona, combina a la perfección tranquilidad, buen vecindario y un entorno natural privilegiado.

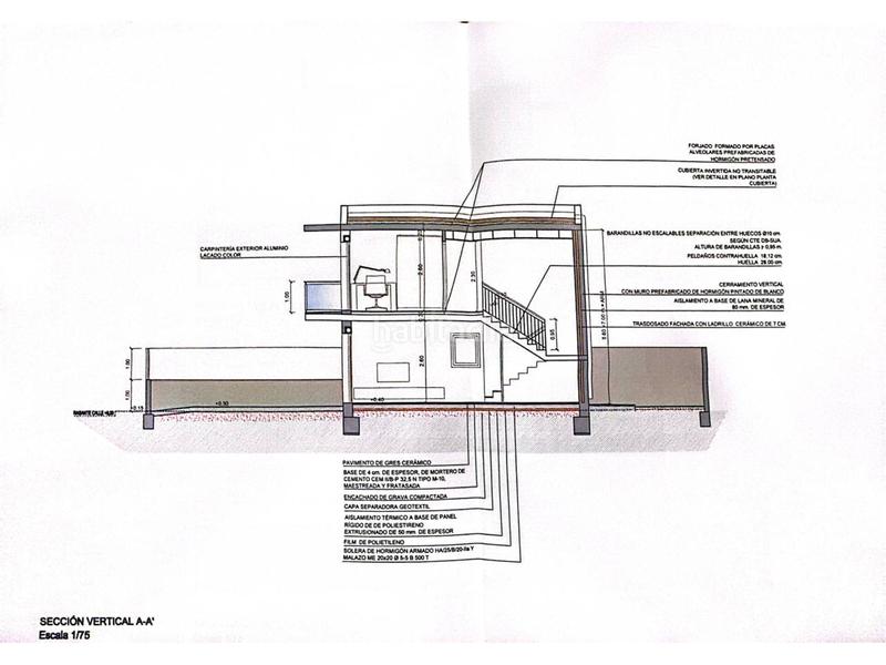
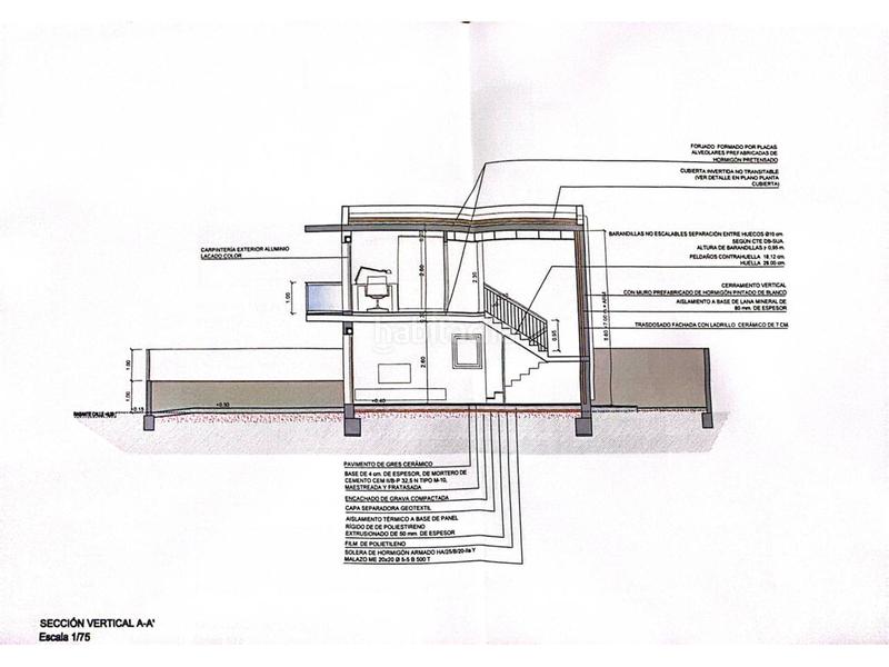
El solar, completamente urbanizado y listo para edificar, ya cuenta con un proyecto disponible para una vivienda contemporánea de dos plantas, con un total de 130 m² construidos de interior. El diseño propone un amplio salón-comedor con cocina semi-separada de 35 m², tres habitaciones, dos baños, zonas ajardinadas, piscina privada y espacio de aparcamiento. Todo ello pensado para ofrecer comodidad, amplitud y un estilo de vida relajado cerca del mar. Todo ello, en una vivienda de dimensiones no muy grandes, para asegurar la máxima comodidad de un piso como la privacidad y lujos de una casa unifamiliar. (se adjunta el proyecto de la casa en este mismo anuncio)

¿Te imaginas empezar una nueva etapa aquí? Llámanos y te lo enseñamos sin compromiso. Puede que esta sea la casa que estabas esperando.

última modificación

Distribución

  • Superficie 345 m2
Anuncio: 9033000000501

Ubicación

Boverals-Saldonar Llatina

Navega por el mapa haciendo clic sobre él
¿Te avisamos cuando tengamos un anuncio como este? Crea tu alerta y nosotros te avisaremos por correo electrónico cuando hayan anuncios nuevos o que sean modificados
 

Contactar Baden Partners Real Estate

Referencia del anuncio habitaclia/LV-TER-02:

Verás el teléfono después de enviar tu contacto al anunciante para que te pueda atender.
Verás el teléfono después de contactar
Enviando...