¡Valoración Guardada!
Sólo lo verás tú
¡Comentario guardado!
Añade tu valoración y/o un comentario para este anuncio. Sólo lo verás tu
195.000 € Avísame si baja

Terreno residencial proyecto casa unifamiliar en Can Font-Ca n'Avellaneda Castellar del Vallès

N/A

  • 800 m2
  • 244 €/m2

Proyecto casa unifamiliar

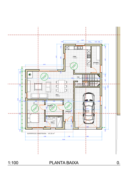
El terreno en la urbanización Can Font, Castellar del Vallès, consta de una parcela llana de 800 m². Se vende con un proyecto visado y presentado en el ayuntamiento, que incluye una casa unifamiliar de dos plantas.

La planta baja, con una superficie construida de 147,55 m², incluye un garaje para un coche (25,53 m²), una sala de estar-comedor (32,50 m²), cocina (16,84 m²), una habitación suite con vestidor (6,80 m²) y baño completo (4,83 m²), además de otras áreas como un baño de cortesía y un lavadero

La primera planta, de 65,10 m², está destinada a zonas de descanso, con tres habitaciones (10,77 m², 10,85 m² y 10,53 m²) y un baño compartido.

Cerificado Energético en proyección de A+

Es una oportunidad ideal para construir en una zona tranquila, bien conectada entre Matadepera y Castellar.
#ref:CBMT640

última modificación

Distribución

  • Superficie 800 m2
Anuncio: 36207000000790

Ubicación

Can Font-Ca n'Avellaneda N/A

Navega por el mapa haciendo clic sobre él
¿Te avisamos cuando tengamos un anuncio como este? Crea tu alerta y nosotros te avisaremos por correo electrónico cuando hayan anuncios nuevos o que sean modificados
 

Contactar Coldwell Banker Style Real Estate Matadepera

Referencia del anuncio habitaclia/CBMT640:

Verás el teléfono después de enviar tu contacto al anunciante para que te pueda atender.
Verás el teléfono después de contactar
Enviando...