¡Valoración Guardada!
Sólo lo verás tú
¡Comentario guardado!
Añade tu valoración y/o un comentario para este anuncio. Sólo lo verás tu
635.000 € Avísame si baja

Finca rústica exclusivo terreno con proyecto en cala magrana en Manacor

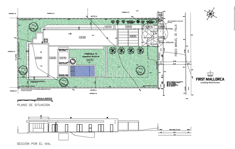
Exclusivo Terreno con Proyecto en Cala Magrana

Ubicado en la tranquila zona residencial de Cala Magrana, este terreno representa una oportunidad excepcional para construir la casa de tus sueños. De forma rectangular y completamente llano, ofrece una orientación óptima para aprovechar al máximo la luz natural durante todo el día. Además, el solar está totalmente vallado, garantizando privacidad y seguridad.

El proyecto básico para una vivienda unifamiliar con piscina ya ha sido presentado al ayuntamiento en agosto de 2024, con todas las tasas pagadas. Además, el estudio geotécnico y topográfico ya están completos y se está a la espera de la aprobación de la licencia.

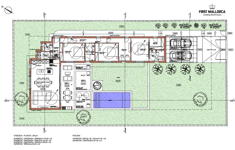
La vivienda diseñada contará con cuatro dormitorios y tres baños, de los cuales dos baños tienen salida directa a la terraza. El salón-comedor con cocina abierta tendrá una amplia superficie de 55 metros cuadrados, proporcionando un espacio abierto y luminoso. La habitación principal, de 20 metros cuadrados, contará con baño en suite y vestidor, ofreciendo una zona privada y exclusiva.

Entre sus características destacan una piscina privada, jacuzzi y dos plazas de aparcamiento, todo pensado para garantizar el máximo confort y exclusividad.

Situado en un entorno de viviendas familiares, el terreno se encuentra a poca distancia a pie de las espectaculares playas de Cala Magrana y Cala Anguila. Una ubicación privilegiada que combina tranquilidad y proximidad al mar, convirtiéndolo en una inversión ideal tanto para residencia habitual como para segunda vivienda.

última modificación

Anuncio: 30150000011601

Ubicación

Cala Magrana-Cala Anguila-Cala Mendia

Navega por el mapa haciendo clic sobre él
¿Te avisamos cuando tengamos un anuncio como este? Crea tu alerta y nosotros te avisaremos por correo electrónico cuando hayan anuncios nuevos o que sean modificados
 

Contactar FIRST MALLORCA

Referencia del anuncio habitaclia/81226:

Verás el teléfono después de enviar tu contacto al anunciante para que te pueda atender.
Verás el teléfono después de contactar
Enviando...