¡Valoración Guardada!
Sólo lo verás tú
¡Comentario guardado!
Añade tu valoración y/o un comentario para este anuncio. Sólo lo verás tu
Oportunidad 1.100 € Avísame si baja

Alquiler local comercial local en lloguer al Centre ! en Vic

  • 82 m2
  • 13,41 €/m2

Local en lloguer al centre de Vic!

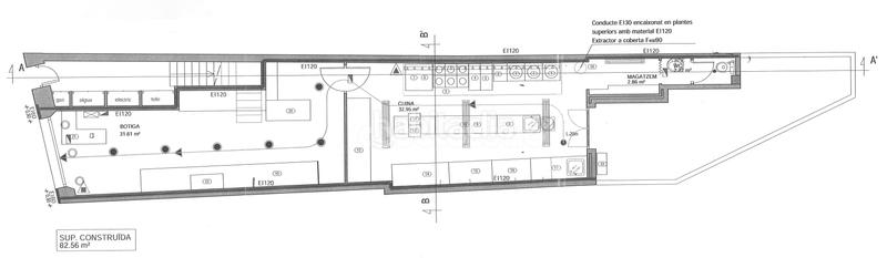
Magnífic local comercial en lloguer al centre de Vic. Consta de 82,56 m² construïts, perfectament distribuïts i ideals per a activitats de restauració, obrador o comerç amb manipulació d’aliments.

A la part frontal, disposa d’una àmplia zona de botiga de 31,61 m², amb accés directe des del carrer i excel·lent visibilitat comercial, perfecta per a exposició, taulell de venda o zona de degustació.

La part central del local acull una funcional i espaiosa zona de cuina/obrador de 32,95 m², distribuïda en àrees de preparació, cocció i rentat, i equipada amb instal·lacions de gas, aigua, electricitat, telecomunicacions i conducte d’extracció fins a la coberta, fet que facilita la implantació immediata d’activitats gastronòmiques.

A la zona posterior hi trobem un pràctic magatzem de 2,86 m² i un bany de 2,22 m².

Es tracta d’un local molt versàtil, amb totes les instal·lacions resoltes, ideal per iniciar o ampliar un negoci. Està situat en un dels carrers amb més activitat de la ciutat, el carrer Gurb de Vic, una zona molt cèntrica i comercial, amb elevat trànsit de vianants que garanteix una excel·lent visibilitat i rendiment per a qualsevol tipus de negoci.

Informi's sense compromís!

última modificación

Distribución

  • Superficie 82 m2

Características generales

  • Certificado energético :
    Consumo:
    G
    999 kW h m2 / año
    Emisiones:
    G
    999 kg CO2 m2 / año
Anuncio: 10354004402050

Ubicación

Centre Gurb

Navega por el mapa haciendo clic sobre él
¿Te avisamos cuando tengamos un anuncio como este? Crea tu alerta y nosotros te avisaremos por correo electrónico cuando hayan anuncios nuevos o que sean modificados
 

Contactar CODOLGESTIO

Referencia del anuncio habitaclia/V02267:

Verás el teléfono después de enviar tu contacto al anunciante para que te pueda atender.
Verás el teléfono después de contactar
Enviando...