¡Valoración Guardada!
Sólo lo verás tú
¡Comentario guardado!
Añade tu valoración y/o un comentario para este anuncio. Sólo lo verás tu
3.250.000 € Avísame si baja

Casa en Fornells-Aiguablava Begur

  • 760 m2
  • 5 hab.
  • 6 baños
  • 4.276 €/m2

BARNES presenta esta impresionante villa de 760 m², situada en una amplia parcela de 2.430 m² orientada al sur en Aiguablava, con un gran jardín, piscina y maravillosas vistas panorámicas al mar. La propiedad se encuentra además a pocos minutos a pie de la playa.

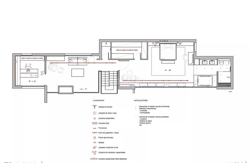
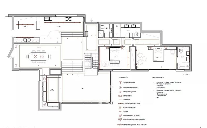
La villa se distribuye en tres plantas de la siguiente manera:

En la planta principal encontramos un amplio salón-comedor con chimenea y grandes ventanales que permiten la entrada de abundante luz natural, con acceso directo al jardín y a la piscina, ambos con espectaculares vistas al mar. En esta planta también se ubica una cocina abierta con despensa. Además, dispone de dos dormitorios, uno de ellos con baño en suite, un baño completo y un aseo de cortesía.

En la planta superior se encuentra el dormitorio principal con baño en suite, un amplio vestidor, un despacho y una agradable zona de estar.

En la planta inferior hay un dormitorio adicional y un baño completo, así como la sala de máquinas, una bodega y una fantástica sala de juegos con bar.

El exterior cuenta con una espectacular piscina, un amplio jardín, zona de barbacoa y una bonita terraza orientada al sur con vistas panorámicas. La propiedad también dispone de un garaje para dos coches y espacio exterior para varios vehículos.

La villa está equipada con calefacción por suelo radiante, caldera de gasoil, depósito de agua y sistema de alarma con videovigilancia.

No dude en contactar con BARNES Costa Brava para más información sobre esta exclusiva propiedad.

última modificación

Distribución

  • 5 habitaciones
  • Superficie 760 m2
  • 6 Baños

Características generales

  • Calefacción
  • Piscina propia
  • Amueblado
  • Aire acondicionado
  • Año construcción 1992
  • Certificado energético :
    Consumo:
    E
    256 kW h m2 / año
    Emisiones:
    E
    56 kg CO2 m2 / año
Anuncio: 15832000002431

Ubicación

Fornells-Aiguablava

Navega por el mapa haciendo clic sobre él
3.250.000 € Precio del anuncio
4.721 €/m2€/m2 población
4.276 €/m2€/m2 del anuncio
9% más barato que la media*
Ver evolución €/m2 en Begur
¿Te avisamos cuando tengamos un anuncio como este? Crea tu alerta y nosotros te avisaremos por correo electrónico cuando hayan anuncios nuevos o que sean modificados
 

Contactar BARNES INTERNATIONAL REALTY

Referencia del anuncio habitaclia/84297706:

Verás el teléfono después de enviar tu contacto al anunciante para que te pueda atender.
Verás el teléfono después de contactar
Enviando...