Amplia oficina en alquiler en la calle Manuel Tovar, Fuencarral
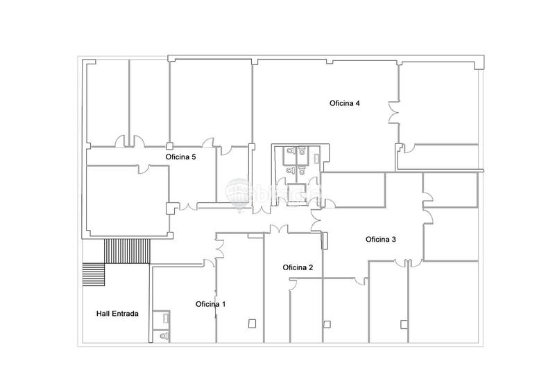
¿Buscas un espacio de trabajo versátil y bien ubicado? Disponemos de una oficina de 600 m² en una misma planta, con entrada privada y recibidor desde la calle, ideal para empresas que necesitan amplitud y comodidad. La oficina, exterior a la calle Manuel Tovar, se encuentra en una de las principales arterias del polígono industrial de Fuencarral, en plena prolongación de la Castellana y Chamartín. Este espacio cuenta con conexiones cercanas a la A-1, M-30 y M-40, facilitando el acceso desde diferentes puntos de la ciudad. La oficina dispone de baños en zonas comunes. Suministros de luz y agua activos.
Cuenta con diversos sistemas de climatización, ya que anteriormente estaba dividida en cinco oficinas de diferentes tamaños (entre los 70 y los 180 m2), lo que la hace perfecta para establecer un coworking o una amplia oficina para una sola compañía. ¡No pierdas la oportunidad de establecer tu negocio en una ubicación privilegiada con todas las comodidades!
habitaclia.com no se responsabiliza de los errores que la información mostrada en este mapa pueda contener. El usuario será el responsable del uso que dé a dicha información.
¿Te avisamos cuando tengamos un anuncio como este?Crea tu alerta y nosotros te avisaremos por correo electrónico cuando hayan anuncios nuevos o que sean modificados
Verás el teléfono después de enviar el formulario de Contactar con el anunciante
Introduce el código que aparece en la imagen superior.
Mis notificaciones
Mis búsquedas
Mis favoritos
Anuncios contactados
Alertas de un anuncio:
Te enviamos por correo electrónico los últimos cambios en el inmueble seleccionado
Alertas anuncios similares:
Te enviamos por correo electrónico los últimos inmuebles y promociones que se hayan publicado en habitaclia y que concuerden con las preferencias de tu búsqueda
Añadir a favoritos
Eliminar de favoritos
El Índice de referencia de precios de alquiler es un indicador que publica la Agencia Catalana de la Vivienda y que permite conocer una estimación del precio medio del metro cuadrado de alquiler de una vivienda ubicada en una zona y con determinadas características. También orienta sobre el precio mínimo y máximo que puede llegar a tener esa vivienda.