¡Valoración Guardada!
Sólo lo verás tú
¡Comentario guardado!
Añade tu valoración y/o un comentario para este anuncio. Sólo lo verás tu
360.000 € Avísame si baja

Casa en Centro - Doña Mercedes Dos Hermanas

  • 399 m2
  • 4 hab.
  • 2 baños
  • 902 €/m2

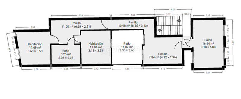
Inmueble único y versátil, perfecto para quienes buscan combinar negocio y hogar en un mismo lugar o incluso explorar oportunidades de inversión. Lo más interesante es su doble fachada, que da acceso a dos calles, ofreciendo luminosidad y ventilación a todo el inmueble. Distribuida en tres plantas, esta vivienda ofrece múltiples posibilidades.
En la planta baja encontramos un local comercial con taller, ideal para emprendedores que necesitan un espacio funcional para su actividad.
Subiendo a la primera planta, accedemos a una vivienda independiente que cuenta con un acogedor salón, cocina, dos dormitorios y un baño completo, perfecta como hogar principal o para alquilar.
En la segunda planta, disponemos de otro piso con una distribución idéntica: salón, cocina, dos dormitorios y baño, ofreciendo la oportunidad de tener otra vivienda completamente independiente.
Por último, en la parte superior, nos encontramos con una encantadora buhardilla que se abre paso hacia dos terrazas, perfectas para disfrutar del aire libre, relajarte o crear un espacio único con vistas a la ciudad.
Ubicada en pleno corazón del centro, esta propiedad goza de una localización inmejorable. A tan solo unos pasos del emblemático mercado de abastos, rodeada de tiendas, bancos y servicios esenciales, tendrás todo lo que necesitas al alcance de la mano. Su proximidad al Ayuntamiento aporta aún más comodidad y acceso a la vida urbana, mientras que la estación de tren cercana conecta fácilmente con otros destinos, convirtiéndola en una opción perfecta tanto para quienes valoran la movilidad como para los que buscan disfrutar del dinamismo de la ciudad.
Con esta ubicación estratégica, esta vivienda no solo ofrece comodidad en su interior, sino que también promete una vida práctica y conectada con todo lo mejor que el centro tiene para ofrecer.

última modificación

Distribución

  • 4 habitaciones
  • Superficie 399 m2
  • 2 Baños
  • Trastero

Características generales

  • Año construcción 1970
  • Certificado energético :
    Consumo:
    E
    30 kW h m2 / año
    Emisiones:
    E
    190 kg CO2 m2 / año
Anuncio: 8478003870483

Ubicación

Centro - Doña Mercedes

Navega por el mapa haciendo clic sobre él
360.000 € Precio del anuncio
1.796 €/m2€/m2 población
902 €/m2€/m2 del anuncio
50% más barato que la media*
Ver evolución €/m2 en Dos Hermanas
¿Te avisamos cuando tengamos un anuncio como este? Crea tu alerta y nosotros te avisaremos por correo electrónico cuando hayan anuncios nuevos o que sean modificados
 

Contactar LA CASA AGENCY

Referencia del anuncio habitaclia/LCSE34728-1:

Verás el teléfono después de enviar tu contacto al anunciante para que te pueda atender.
Verás el teléfono después de contactar
Enviando...