Visita virtual
¡Valoración Guardada!
Sólo lo verás tú
¡Comentario guardado!
Añade tu valoración y/o un comentario para este anuncio. Sólo lo verás tu

Alquiler local comercial local ideal para almacén o distribuidor en Barcelona

  • 1.100 m2
  • 9,09 €/m2

Local ideal para almacén o distribuidor

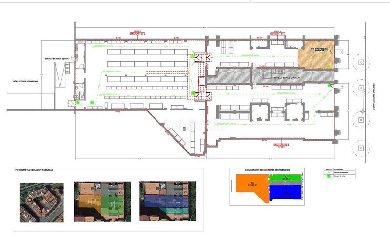
Este local se compone de tres puerta a la calle con acceso para camiones y con una zona diáfana de 455 m2 útiles que da a un patio exterior de 500 m2 esta dotado de salida contra incendios y con alturas de 4,5 diáfano ideal almacén.

Pedir más datos al anunciante

última modificación

Distribución

  • Superficie 1100 m2

Características generales

  • Certificado energético :
    Consumo:
    G
    999 kW h m2 / año
    Emisiones:
    G
    999 kg CO2 m2 / año
Anuncio: 4552003907352

Ubicación

Fort Pienc

Navega por el mapa haciendo clic sobre él
¿Te avisamos cuando tengamos un anuncio como este? Crea tu alerta y nosotros te avisaremos por correo electrónico cuando hayan anuncios nuevos o que sean modificados
 

Contactar PEDROOCHOA

Referencia del anuncio habitaclia/00244:

Verás el teléfono después de enviar tu contacto al anunciante para que te pueda atender.
Verás el teléfono después de contactar
Enviando...