¡Valoración Guardada!
Sólo lo verás tú
¡Comentario guardado!
Añade tu valoración y/o un comentario para este anuncio. Sólo lo verás tu

Alquiler oficina en Barri de les Corts Barcelona

  • 230 m2
  • 2 baños
  • 22,17 €/m2

Bonita Oficina TOTALMENTE EXTERIOR con mas de 20m lineales de fachada
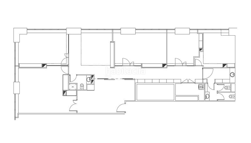
Distribuida en 4 despachos, 1 sala de juntas ideal para reuniones corporativas, open space y recepción, cocina-office, núcleo de aseos doble y sala rack
Instalación perimetral de red y datos nueva
Luminarias empotradas en falso techo metálico
Climatización frío-calor por conductos
Permite la ventilación natural a través de ventanas practicables
Estores tipo screen en todas las estancias
Pavimento de parqué natural

Edificio Representativo excelentemente situado en la zona alta junto la Av. Diagonal.
Fachada muro cortina recién renovada de alta eficiencia e imagen
3 Ascensores, servicio de conserjería ininterrumpido y vigilancia nocturna
Parking opcional en el mismo edificio.

*Gastos de Comunidad e IBI: A parte renta.

Excelentes Comunicaciones y Transporte Público:
Metro: Línea 3 – Parada: María Cristina
Tren: Renfe: Conexión Sants Estació
Bus: 6, 7, 33, 34, 8, 97, V3, V5, V7, H6 y otros
Tranvía: Tram. Líneas T1, T2 y T3 – Parada: Numancia
A 20 minutos del Aeropuerto del Prat.

última modificación

Distribución

  • Superficie 230 m2

Características generales

  • Calefacción
  • Plaza parking
  • Sin amueblar
  • Aire acondicionado
  • Certificado energético :
    Consumo:
    C
    197 kW h m2 / año
    Emisiones:
    C
    41 kg CO2 m2 / año

Equipamiento comunitario

  • Ascensor
Anuncio: 5042004432202

Ubicación

Barri de les Corts Carrer de Numància

Navega por el mapa haciendo clic sobre él
¿Te avisamos cuando tengamos un anuncio como este? Crea tu alerta y nosotros te avisaremos por correo electrónico cuando hayan anuncios nuevos o que sean modificados
 

Contactar JORDÀ & GUASCH

Referencia del anuncio habitaclia/H-2507:

Verás el teléfono después de enviar tu contacto al anunciante para que te pueda atender.
Verás el teléfono después de contactar
Enviando...