¡Valoración Guardada!
Sólo lo verás tú
¡Comentario guardado!
Añade tu valoración y/o un comentario para este anuncio. Sólo lo verás tu

Alquiler oficina de 400 m2 en finca regia de via laietana en Barcelona

  • 404 m2
  • 17,08 €/m2

Oficina de 400 m2 en finca regia de Via Laietana

Amplia oficina en finca regia en el corazón de Ciutat Vella – 400 m² exteriores en Jaime I

Exclusiva oficina de 400 m² ubicada en una peculiar finca regia en la calle Jaime I, una de las zonas más céntricas y con mayor proyección de Ciutat Vella, actualmente en plena transformación.

Ocupa toda la segunda planta del edificio y disfruta de luz natural a tres vientos, con grandes ventanales y balconcillos que aportan carácter y encanto histórico.

Conserva elementos originales de la época, como los techos altos con volta catalana, que se combinan con un diseño funcional ideal para cualquier tipo de despacho o empresa creativa.

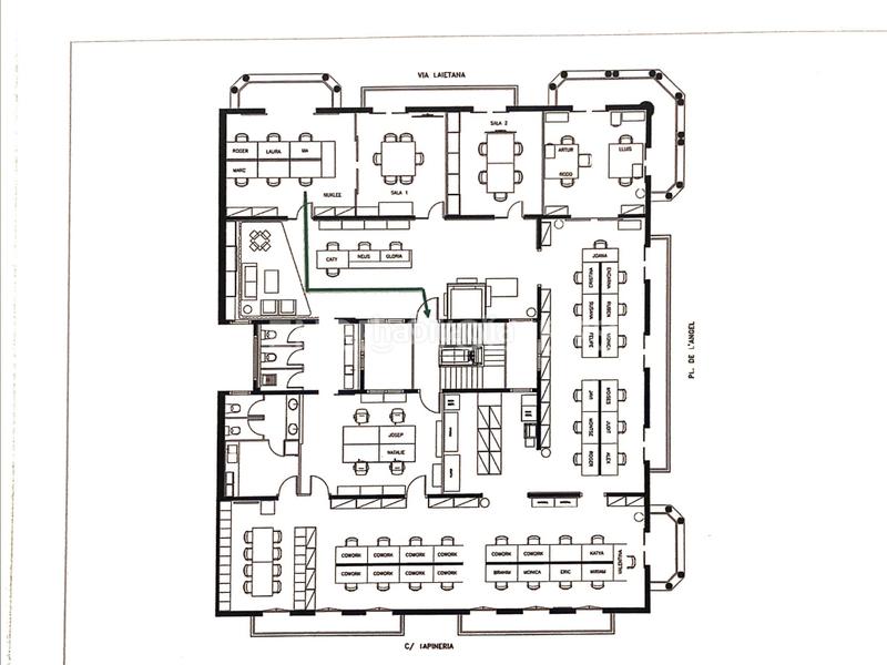
La distribución incluye una amplia zona diáfana, varias salas independientes de diferentes tamaños, office, dos núcleos de aseos y dos accesos de entrada, lo que permite gran flexibilidad de uso.

Dispone de suelo técnico de parquet, climatización frío/calor y todas las instalaciones actualizadas.

Una pieza única para quienes buscan una oficina representativa y con personalidad en el centro de Barcelona, a un paso del Born, Plaza Sant Jaume y Via Laietana.

ENGLISH:

Spacious Office in a Historic Building in the Heart of Ciutat Vella – 400 m² on Jaime I

Exclusive 400 m² office located in a unique historic building on Jaime I Street, one of the most central and up-and-coming areas of Ciutat Vella, currently undergoing major transformation.

Occupying the entire second floor, it enjoys natural light on three sides, with large windows and charming balconies that provide character and historic charm.

Original period features such as high ceilings with Catalan vaults are preserved, combined with a functional layout that makes it ideal for any type of office or creative workspace.

The space includes a large open-plan area, several independent rooms of different sizes, an office kitchenette, two restroom areas, and two separate entrances, offering great flexibility of use.

It features raised parquet flooring, hot/cold air conditioning, and all installations are up to date.

A truly unique and representative office for those seeking a space with personality in the center of Barcelona, just steps away from El Born, Plaça Sant Jaume, and Via Laietana.

CATALÀ:

Àmplia oficina en finca règia al cor de Ciutat Vella – 400 m² al carrer Jaume I

Exclusiva oficina de 400 m² situada en una peculiar finca règia al carrer Jaume I, una de les zones més cèntriques i amb més projecció de Ciutat Vella, actualment en plena transformació.

Ocupa tota la segona planta de l’edifici i gaudeix de llum natural a tres vents, amb grans finestrals i balcons que aporten caràcter i encant històric.

Conserva elements originals de l’època, com els sostres alts amb volta catalana, que es combinen amb un disseny funcional ideal per a qualsevol tipus de despatx o espai creatiu.

La distribució inclou una àmplia zona diàfana, diverses sales independents de diferents dimensions, office, dos nuclis de lavabos i dues entrades d’accés, fet que permet una gran flexibilitat d’ús.

Disposa de terra tècnic de parquet, climatització fred/calor i totes les instal·lacions actualitzades.

Una peça única per a qui busqui una oficina representativa i amb personalitat al centre de Barcelona, a pocs passos del Born, la plaça Sant Jaume i la Via Laietana.

última modificación

Distribución

  • Superficie 404 m2

Características generales

  • Aire acondicionado
  • Certificado energético :
    Consumo:
    E
    44 kW h m2 / año
    Emisiones:
    G
    263 kg CO2 m2 / año
Anuncio: 1772002714991

Ubicación

Gòtic

Navega por el mapa haciendo clic sobre él
¿Te avisamos cuando tengamos un anuncio como este? Crea tu alerta y nosotros te avisaremos por correo electrónico cuando hayan anuncios nuevos o que sean modificados
 

Contactar ENGEL & VÖLKERS

Referencia del anuncio habitaclia/BCN-OS-016107:

Verás el teléfono después de enviar tu contacto al anunciante para que te pueda atender.
Verás el teléfono después de contactar
Enviando...