¡Valoración Guardada!
Sólo lo verás tú
¡Comentario guardado!
Añade tu valoración y/o un comentario para este anuncio. Sólo lo verás tu

Alquiler oficina en alquiler en consell de cent con rambla catalunya en Barcelona

  • 243 m2
  • 15,02 €/m2

Oficina en alquiler en Consell de Cent con Rambla Catalunya

OFICINA EXTERIOR EN PLANTA ALTA, CON TERRAZA Y VISTAS AL MAR Y MONTAÑA

Ubicada en la octava planta de un edificio exclusivo de oficinas construido en 1985, esta oficina ofrece un entorno funcional y representativo para empresas. El edificio cuenta con planta baja destinada a restauración y diez plantas sobre rasante dedicadas íntegramente a espacios de trabajo. Dispone de servicio de conserjería en horario laboral y dos ascensores que facilitan el acceso a todas las plantas.

Con una superficie total de 243 m², la oficina destaca por su luminosidad natural y sus vistas despejadas tanto hacia el mar como hacia la montaña. Se distribuye en un espacio principal de trabajo de 147 m², una buhardilla anexa de 40 m² y una terraza de uso privativo de 56 m², perfecta como zona de descanso o para reuniones informales al aire libre

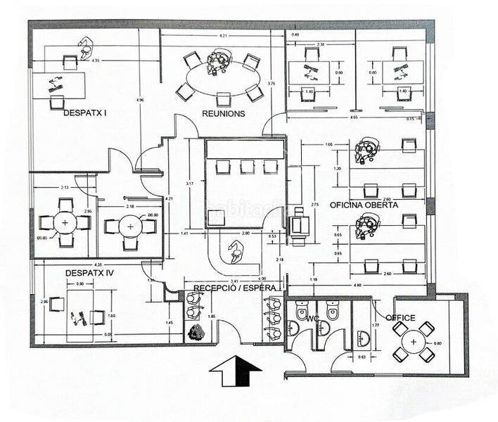
El interior está compartimentado mediante tabiques y se organiza en una zona de recepción con área de espera, una sala de reuniones, tres despachos orientados al mar con salida directa a la terraza, y una sala diáfana de uso operativo orientada a la montaña, con amplios ventanales y excelentes vistas. Además, dispone de sala técnica, dos aseos y un espacio adicional con posibilidad de habilitarse como office.

La oficina está equipada con sistema de climatización frío/calor por conductos, techo técnico con iluminacion LED incorporada y cableado para voz y datos, con todas las instalaciones en buen estado. Existe la posibilidad de alquilarla equipada con el mobiliario actual, si se requiere.

Ubicación privilegiada, situada en Consell de Cent con Rambla Catalunya, en pleno corazón del Eixample barcelonés, esta oficina se encuentra en una de las zonas más atractivas y dinámicas de la ciudad. La reciente peatonalización de la calle ha transformado el entorno en un espacio más verde, tranquilo y accesible, ideal tanto para pasear como para el desarrollo de actividad profesional.

Rodeada de arquitectura modernista, tiendas exclusivas, restaurantes y con excelentes conexiones de transporte público.

Gastos de comunidad e ibi no incluidos en la renta
* En cumplimiento de la Ley 12/2023 y la Llei 18/2007 informamos que:
Ref. AOB2509005

última modificación

Distribución

  • Superficie 243 m2

Características generales

  • Calefacción
  • Sin plaza parking
  • Aire acondicionado
  • Año construcción 1985
  • Certificado energético :
    Consumo:
    E
    96 kW h m2 / año
    Emisiones:
    D
    16 kg CO2 m2 / año

Equipamiento comunitario

  • Ascensor
Anuncio: 30116000001894

Ubicación

Dreta de l´Eixample Carrer del Consell de Cent

Navega por el mapa haciendo clic sobre él
¿Te avisamos cuando tengamos un anuncio como este? Crea tu alerta y nosotros te avisaremos por correo electrónico cuando hayan anuncios nuevos o que sean modificados
 

Contactar APROPERTIES REAL ESTATE - OFICINAS

Referencia del anuncio habitaclia/AOB2509005:

Verás el teléfono después de enviar tu contacto al anunciante para que te pueda atender.
Verás el teléfono después de contactar
Enviando...