Favorito y comentario
Apartamento en Las Flores Mijas
Características principales
- 53 m2
- 1 hab.
- 1 baño
- 4.566 €/m2
Información detallada
Impresionantes Pisos y Áticos en Las Lagunas, Mijas
Estos modernos apartamentos cuentan con distribuciones diáfanas que conectan la sala de estar, la cocina y el dormitorio. Diseñados con tonos cálidos y materiales naturales, cada vivienda ofrece un ambiente acogedor y luminoso. La amplia terraza actúa como una extensión del espacio habitable, perfecta para disfrutar del sol diario y de las vistas despejadas.
El proyecto incluye piscina, gimnasio, zona de barbacoa, sala de coworking y aparcamiento privado. Tanto si desea relajarse, mantenerse en forma o trabajar a distancia, las zonas comunes están diseñadas para satisfacer todas sus necesidades.
Situado en Las Lagunas de Mijas, el complejo se encuentra entre el encanto costero de Fuengirola y la belleza tradicional de Mijas. Fuengirola ofrece 8 km de playas con bandera azul, un animado ambiente social y una vibrante vida nocturna, mientras que Mijas añade un toque de patrimonio andaluz con sus calles empedradas y su riqueza cultural.
Los pisos en venta en Mijas Málaga están a solo 1 km del parque comercial Miramar, a 1,5 km de Carrefour, a 2 km de El Corte Inglés y del centro comercial Miramar, y de la estación de tren de Fuengirola. También están a 4 km del Cerrado del Águila Golf Resort, a 26 km del aeropuerto de Málaga, a 35 km de Marbella y del centro de Málaga, y a 40 km de Puerto Banús.
AGP-0967
última modificación
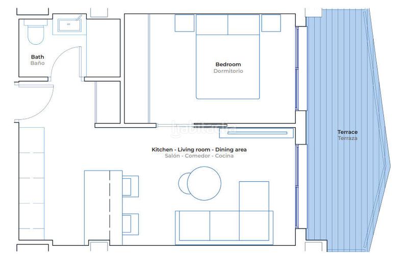
Distribución
- 1 habitación
- Superficie 53 m2
- 1 Baño
Características generales
- Aire acondicionado
Galería
Ubicación
Las Flores
