Visita virtual
¡Valoración Guardada!
Sólo lo verás tú
¡Comentario guardado!
Añade tu valoración y/o un comentario para este anuncio. Sólo lo verás tu
1.595.000 € Avísame si baja

Casa edificio en el centro histórico gran potencial de inversión en Dénia

Carrer del Cop

  • 745 m2
  • 18 hab.
  • 9 baños
  • 2.141 €/m2

Edificio En El Centro Histórico de Dénia Gran Potencial De Inversión

Engel & Völkers presenta este singular edificio de planta baja más tres alturas, situado en el centro histórico de Dénia. Con una ubicación privilegiada, ofrece vistas al Montgó por un lado y al Ayuntamiento por el otro, rodeado de comercios, ocio y todos los servicios necesarios. Desde la tercera planta, se pueden disfrutar vistas impresionantes de la cúpula de la emblemática Iglesia de la Asunción y del Castillo de Dénia, lo que convierte a este inmueble en una joya única.

El edificio, que hasta ahora ha sido destinado al alquiler de oficinas, presenta múltiples posibilidades de reconversión gracias a su sólida estructura y distribución (previa consulta con el ayuntamiento). Su versatilidad le permite adaptarse a diversas opciones de uso, ya sea para continuar como espacio de oficinas, o para transformarlo en apartamentos, alquiler por habitaciones, despachos profesionales o incluso espacios de coworking.

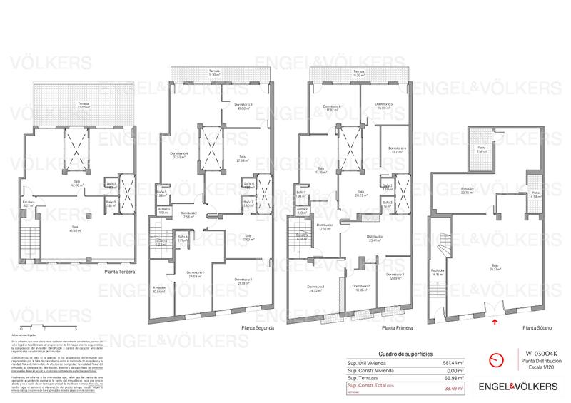
La planta baja, de 164.5 m², alberga actualmente un local comercial alquilado. Las tres plantas superiores se distribuyen en 9 oficinas con las siguientes superficies:
- Primera planta: 215 m²
- Segunda planta: 215 m²
- Tercera planta: 151.5 m²
Todas las superficies son útiles, sin contar los metros de la escalera. Cada oficina dispone de balcón, aseo privado, aire acondicionado tipo split y contador eléctrico independiente, lo que facilita una gestión autónoma de los suministros. Además, una de las oficinas de la tercera planta cuenta con una terraza privada de 32 m², desde la cual se pueden apreciar las vistas al castillo y la iglesia, un detalle que aporta aún más valor al inmueble.

El edificio se encuentra en un estado excelente de conservación, con una estructura reforzada y techos altos que aportan amplitud y luminosidad. No presenta problemas de humedades, lo que minimiza la necesidad de reformas grandes adicionales. Además, existe la posibilidad de instalar un ascensor, lo que aumentaría su accesibilidad y valor en el mercado.

Una inversión sólida en una de las zonas más demandadas de Dénia, ideal para quienes buscan rentabilidad inmediata y un activo con un gran potencial a futuro. Ya sea para mantenerlo como oficina o reconvertirlo, este edificio representa una oportunidad única en el centro histórico.

Contáctanos para obtener más detalles y explorar todas las posibilidades que ofrece este inmueble.
Vivir o invertir en Dénia, Alicante, es apostar por calidad de vida, rentabilidad y proyección de futuro. Situada entre el mar y la montaña, y conocida históricamente como Dianium, Dénia combina kilómetros de playas de aguas cristalinas, un puerto vibrante con conexión directa a las Islas Baleares y una oferta gastronómica de prestigio internacional, con restaurantes galardonados con estrellas Michelin. Además, la ciudad ofrece excelentes servicios de sanidad, con clínicas privadas, amplia oferta de ocio con pubs, discotecas y actividades náuticas, todo ello enmarcado en un casco histórico lleno de encanto y cultura mediterránea. Su clima templado durante todo el año, la cercanía a importantes núcleos urbanos y la creciente demanda de vivienda turística y residencial convierten a Dénia en una ubicación estratégica, ideal para disfrutar como hogar o para asegurar una inversión sólida y de alta rentabilidad en una de las zonas más deseadas de la Costa Blanca.

última modificación

Distribución

  • 18 habitaciones
  • Superficie 745 m2
  • Terreno 234 m2
  • 9 Baños

Características generales

  • Calefacción
  • Sin plaza parking
  • Aire acondicionado
  • Año construcción 1960
  • Certificado energético :
    Consumo:
    D
    134 kW h m2 / año
    Emisiones:
    D
    28 kg CO2 m2 / año
Anuncio: 5953003372949

Ubicación

Centro Urbano Carrer del Cop

Navega por el mapa haciendo clic sobre él
1.595.000 € Precio del anuncio
2.656 €/m2€/m2 distrito
2.141 €/m2€/m2 del anuncio
19% más barato que la media*
¿Cuanto te gustaría pagar?
Ver evolución €/m2 en Dénia (Centro Urbano)
¿Te avisamos cuando tengamos un anuncio como este? Crea tu alerta y nosotros te avisaremos por correo electrónico cuando hayan anuncios nuevos o que sean modificados
 

Contactar Engel & Völkers València

Referencia del anuncio habitaclia/I-030O4K-W-030O4K:

Verás el teléfono después de enviar tu contacto al anunciante para que te pueda atender.
Verás el teléfono después de contactar
Enviando...